230㎡复式欧式风格桃源漫步
发布时间:
2020年08月11日
小区:桃源漫步 面积:230㎡ 户型:复式 风格:欧式风格
设计说明
本案例为跃层,常住人口为一家三口,女儿已到成婚年龄,业主想要营造一个舒适的生活空间。所以本案的设计中心主要倾向于家的“舒适性”。一层空间主要着重与楼梯间的设计,解决其原始空间过小而导致的问题。客餐厅通过吊顶的设计手法,弱化梁位过低的弊端。二层空间较为简单,设计要点主要体现在灯光与色彩搭配上。全房采用暖色系的搭配,让业主体会到家的温暖。
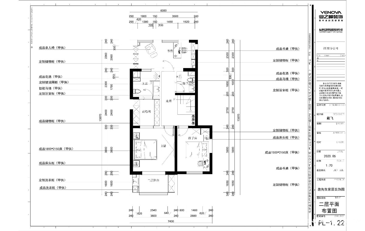
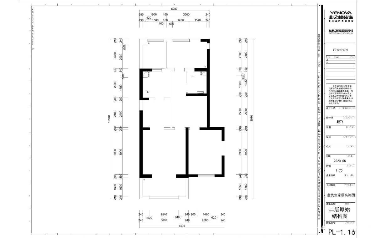
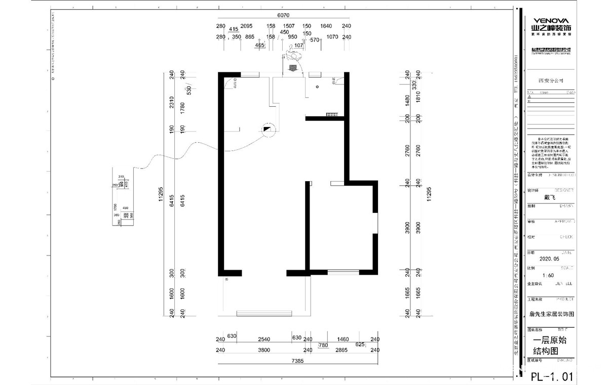
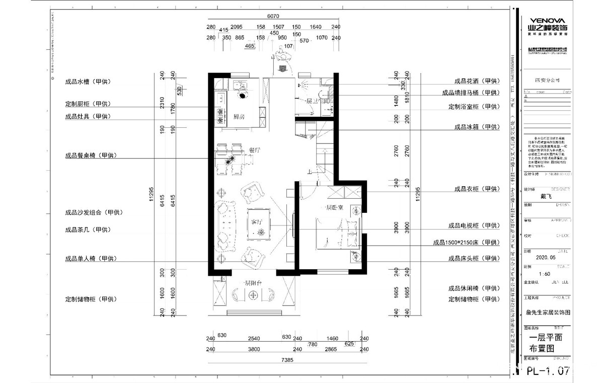
户型图

书房
卫生间
客厅




卧室
玄关
楼梯




京公安网备11010502040911