330㎡复式新中式风格清凉山居
发布时间:
2020年08月08日
小区:清凉山居 面积:330㎡ 户型:复式 风格:新中式风格
设计说明
本案定位为新中式风格,以简单的直线条表现中式的古朴大方,但在家具等地方精致的收边也体现了品质的要求。色调以朱砂红作为统领色,用小色块的整体点色进行贯穿,而木色的沉稳内敛,秉持整个空间古雅大气的调性。巧借室外一缕自然天光,便可观赏婆娑疏影摇曳出四季的变幻。案例整体去繁就简,让灵感在谈话中碰撞空间的美好不止于流露出艺术的视觉表象更在于重塑一种属于当代人的诗意慢生活。
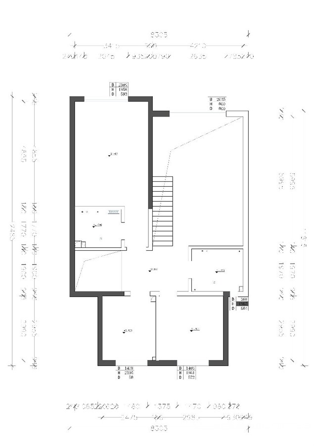
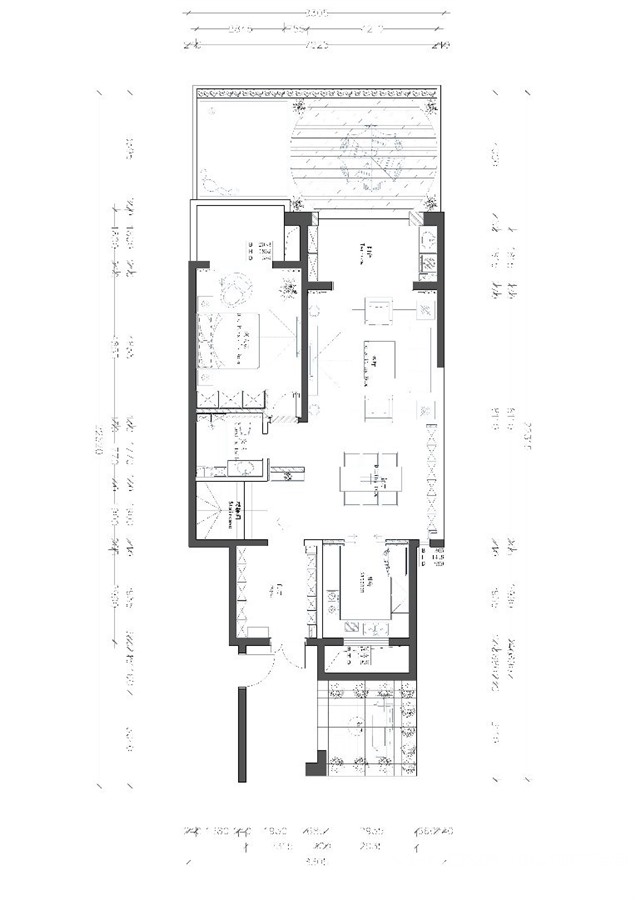
户型图

客厅









卧室


书房


休闲区







玄关





京公安网备11010502040911