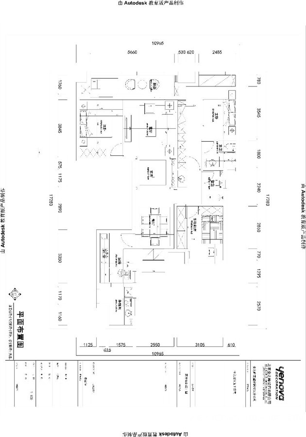
130㎡三居其他金湖听语
发布时间:
2020年07月08日
小区:金湖听语 面积:130㎡ 户型:三居 风格:其他
设计说明
业主是一家三口,喜欢现代简约风格,想要现代生活的形式和个性化,设计师关注客户的舒适性,合理性,打造最舒适的空间,公共空间整个的采光是最好的,风景也是最好的,一切都是符合业主的生活习惯和对现代风格的喜欢 。
户型图

客厅



儿童房

卧室

玄关

餐厅





京公安网备11010502040911