400㎡别墅新中式风格牧山丽景
发布时间:
2020年05月17日
小区:牧山丽景 面积:400㎡ 户型:别墅 风格:新中式风格
设计说明
本案为成都业之峰装饰新中式案列,古典质感与现代潮流相互碰撞,让整个厅堂剔除繁杂、告别沉闷,处处散发着简洁优雅、唯美大气的层次之美。象牙白大理石茶几消解了严肃的氛围,打通了严谨与随性之间的互动。黑铁凳椅扶手的线条延伸折转,辅以在百花凋零的隆冬绽放的腊梅点缀,骄傲夺目。靠背抱枕,摆件等装饰细节,采用跳脱的亮色,打破空间的单调感,与整体气质和谐统一,巧妙地传达着家居主的生活小趣味 ...
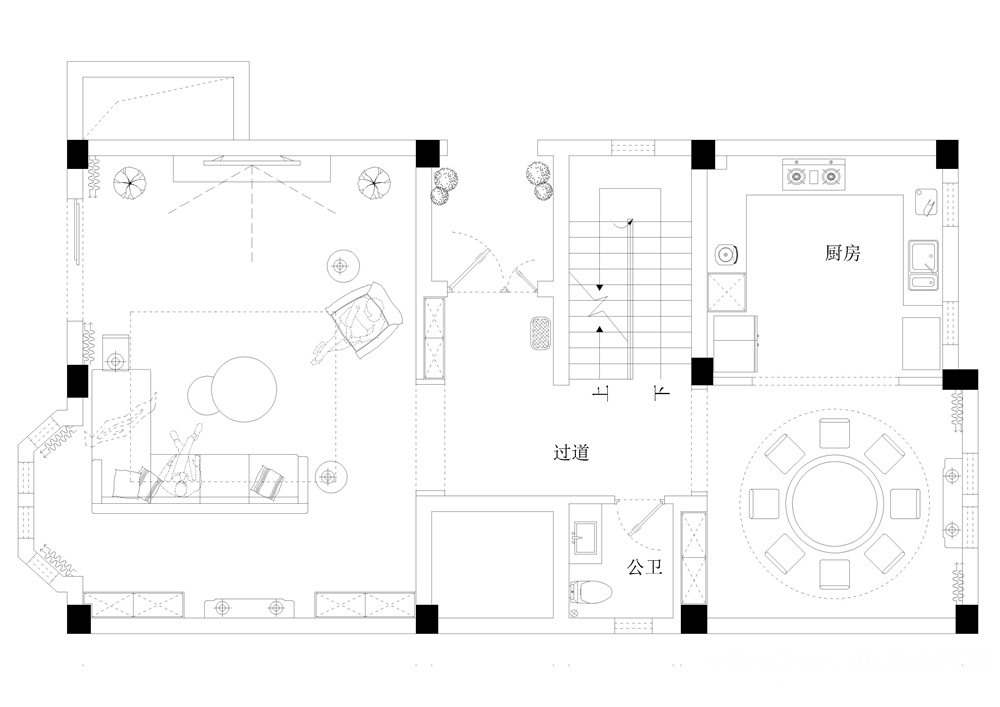
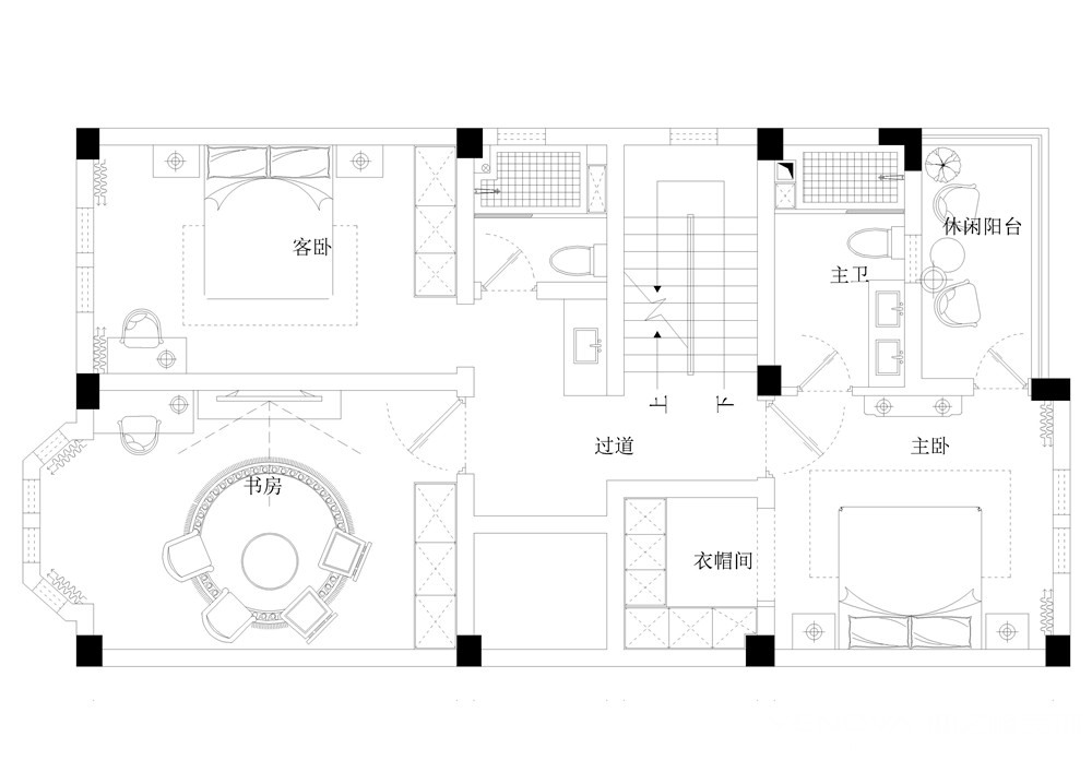
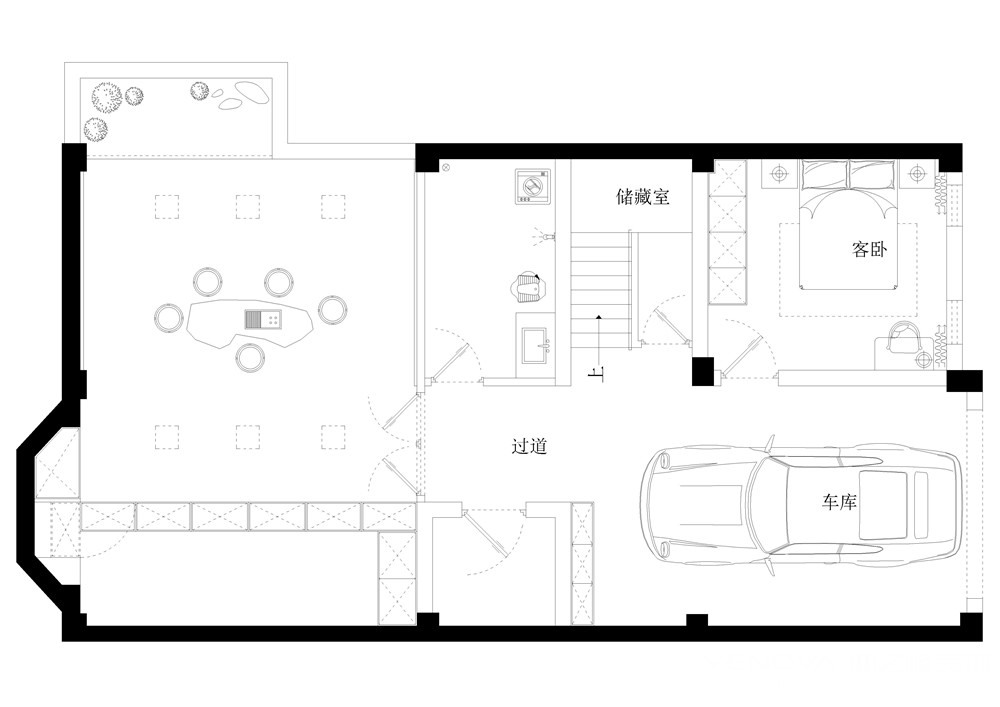
户型图

客厅





卧室





京公安网备11010502040911