300㎡别墅美式风格怡湖玫瑰苑
发布时间:
2020年05月17日
小区:怡湖玫瑰苑 面积:300㎡ 户型:别墅 风格:美式风格
设计说明
本案为成都业之峰装饰的现代美式案列,该业主装修的这套房的目的是用来养老居住的,年轻的时候我们每天都在忙着奋斗打拼,忙碌奔波中。随着时光的流逝,精力逐渐的消退,开始了慢节奏的生活,开始去品味生活中的小细节。综合考虑,整个作品的主基调都是淡淡的暖黄调,搭配上原木色,整个空间的氛围感觉非常温馨,灰色大理石地面,又使得一楼的整个空间非常的大气。在卧室斗柜上的金属线条,增添时尚感,使得整个空间极具灵动感。
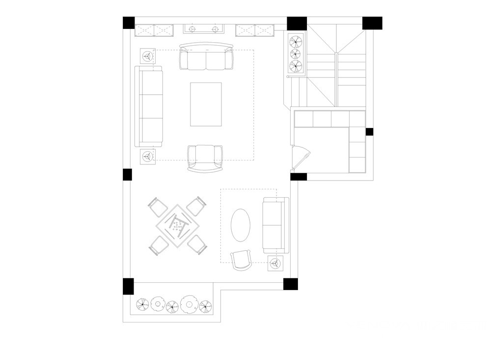
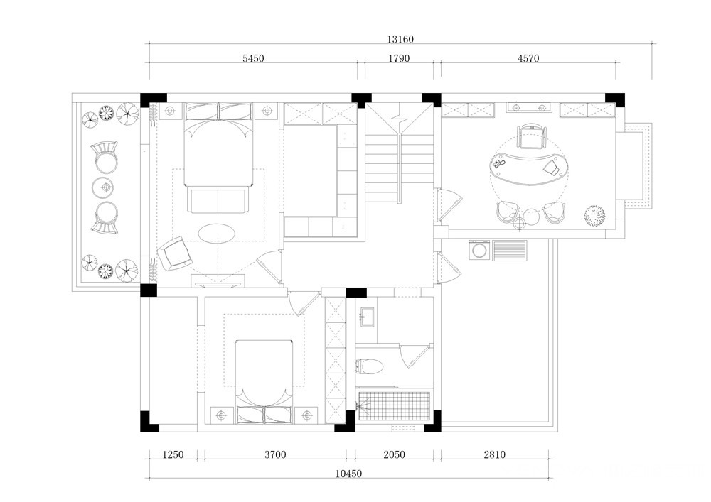
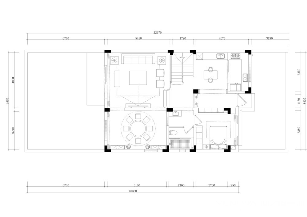
户型图

卧室


客厅








京公安网备11010502040911