136㎡三居其他北苑小区
发布时间:
2020年03月22日
小区:北苑小区 面积:136㎡ 户型:三居 风格:其他
设计说明
本案例针对业主需求,设计师为其甄选了简美风格,保留传统美式的典雅,避开繁琐与堆砌,运用现代简约的手法来塑造简式美风的高贵,不失奢华,又无轻浮。
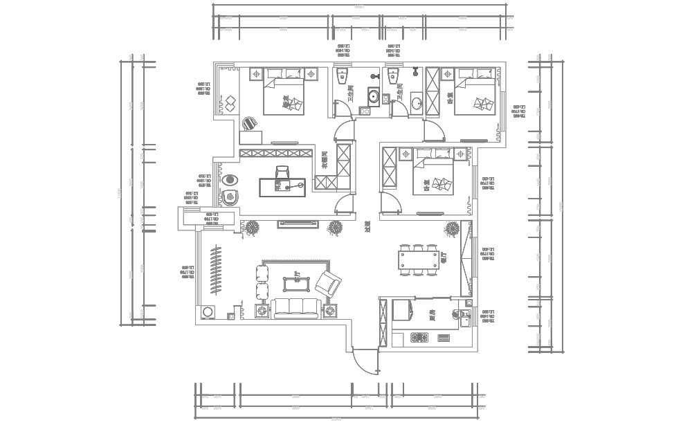
户型图

餐厅

客厅




玄关

本案例针对业主需求,设计师为其甄选了简美风格,保留传统美式的典雅,避开繁琐与堆砌,运用现代简约的手法来塑造简式美风的高贵,不失奢华,又无轻浮。






