127㎡三居其他融创中心
发布时间:
2019年11月12日
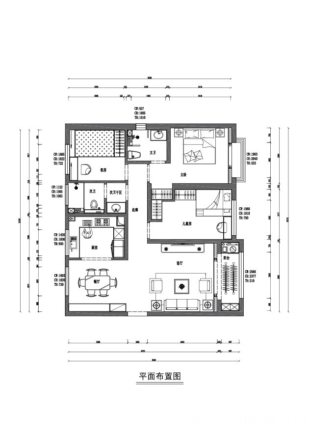
小区:融创中心 面积:127㎡ 户型:三居 风格:其他
设计说明
本套方案为现代轻奢风格,通过空间布局上的合理运用,本案整体风格简介明快注重室内空间的使用功能,主张废弃繁琐的装饰,室内布置按功能区分的原则进行,家具布置与空间密切配合,色彩造型紧跟时尚潮流,以个性化简单化装修方式给业主打造舒适家居。客厅的设计上阳台窗户为落地玻璃窗,在视觉上即突显空间又能够有很好的采光。家具上以黑白灰色调以及金属元素的点缀,营造沉稳又不失时尚的氛围,同时与完美的软装相结合,给人全新的体验,在吊顶上采用金属条镶嵌时尚大气的外观造型和地板的拼花工艺,家具上以黑白灰色调以及金属元素的点缀,充分彰显主人高尚的生活品味。色彩上运用时下最流行的金属色调与光感呼应;米杏色、黑白几何,高傲中带点忧郁的“雾霾蓝”,作为主基调搭配黄铜饰品的金属感古堡灰大理石,跳跃零星几抹赭石色;给空间带来视觉上的层次感。
户型图

客厅



卧室



儿童房

卫生间


厨房

餐厅





京公安网备11010502040911