115㎡复式现代简约风格海域香廷
发布时间:
2019年11月02日
小区:海域香廷 面积:115㎡ 户型:复式 风格:现代简约风格
设计说明
咨询电话:0791-86296016,经过时间的洗礼,对于时尚以及装饰主义,结合时代以及潮流,产生了新的定义,华丽的装饰主义渐渐退出舞台,褪去浮夸,我们提出的是一种提纯的概念,融合的理解,以及新的lifestyle。设计师别出心裁,将装饰主义提纯,只为本案留下最高雅的装饰,融合现代,打造一个符合国际化趋势且具有生活情调的全新空间。
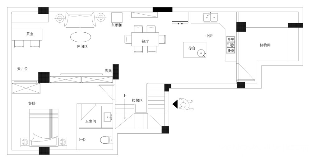
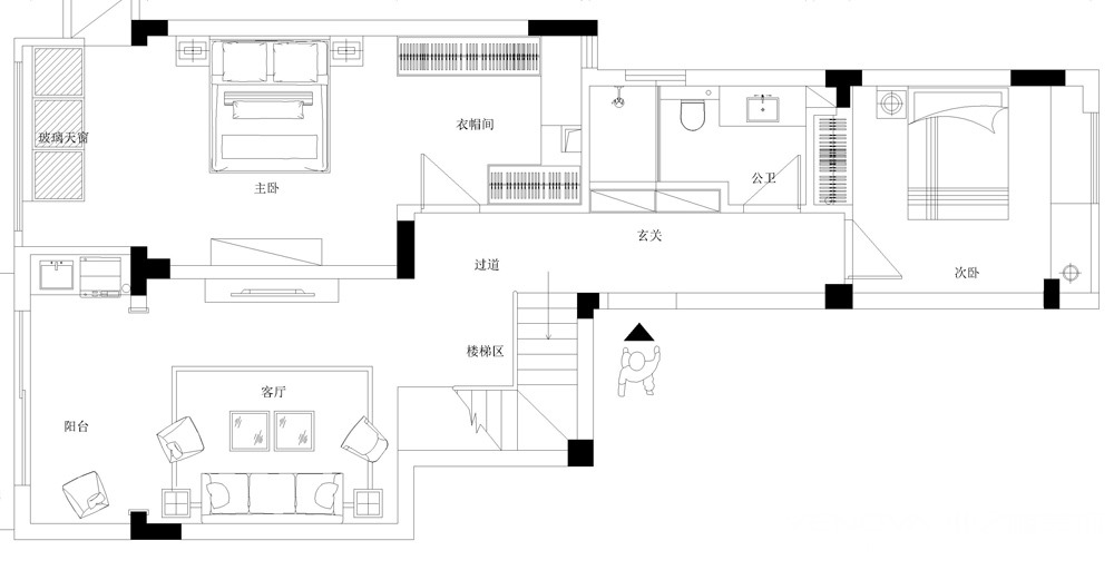
户型图

客厅






卫生间

卧室


餐厅





京公安网备11010502040911