130㎡三居简欧风格皇冠湖壹号
发布时间:
2019年09月25日
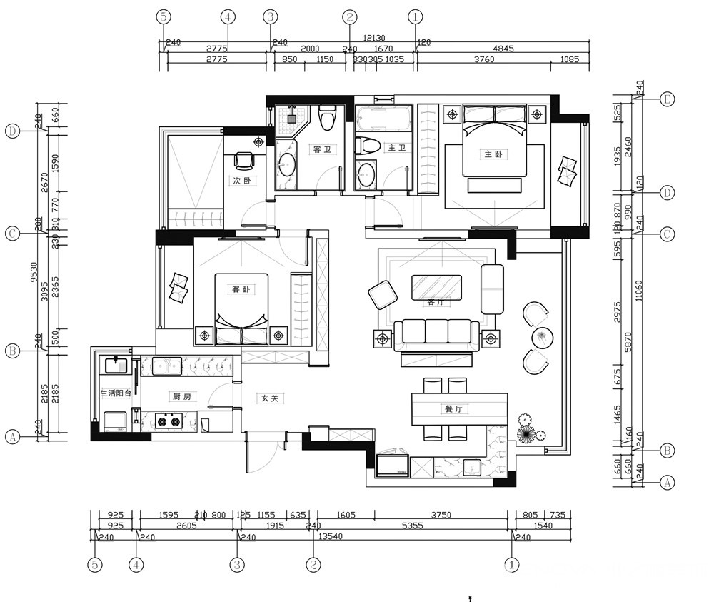
小区:皇冠湖壹号 面积:130㎡ 户型:三居 风格:简欧风格
设计说明
成都业之峰装饰设计案例:本案是欧式风格,客户是生意人,在设计之初客户对于风格及要求不太明确,自己也不知道做成什么好,那么我们在设计的过程中考虑到客户的社会地位及对家的要求做出了欧式现代混搭的风格,颜色也浅色为主,这样空间会显得大很多,品质感也非常大强,客户非常满意。
户型图

玄关

卧室

客厅






京公安网备11010502040911