300㎡别墅新中式风格芙蓉古城
发布时间:
2019年09月25日
小区:芙蓉古城 面积:300㎡ 户型:别墅 风格:新中式风格
设计说明
成都业之峰装饰设计案例:本案是新中式风格,是属于双拼别墅,客户本人属于国企高管,在房子结构方面很有研究,而且注重现场效果落地及实施,在前期勘查现场至少四次以上,在后期方案过了后对于主材及软装配饰上要求也很高,包扩预算及方案都要做的仔仔细细才行,由此我们在前期做了大量的工作,也得到了客户的高度认可。
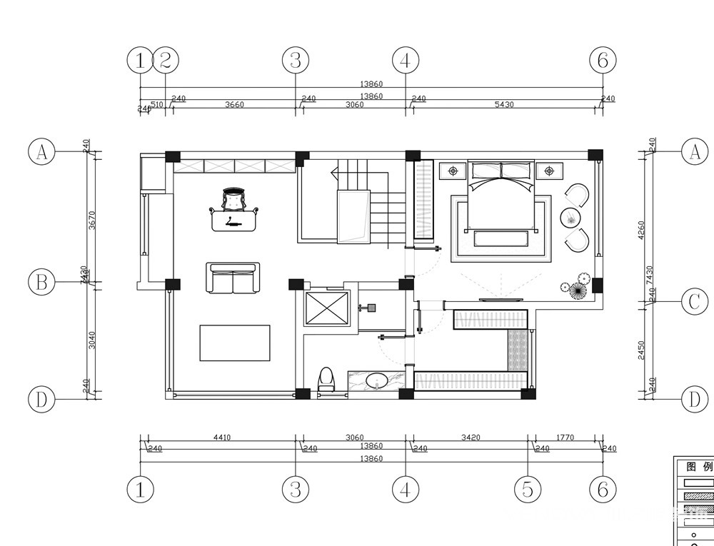
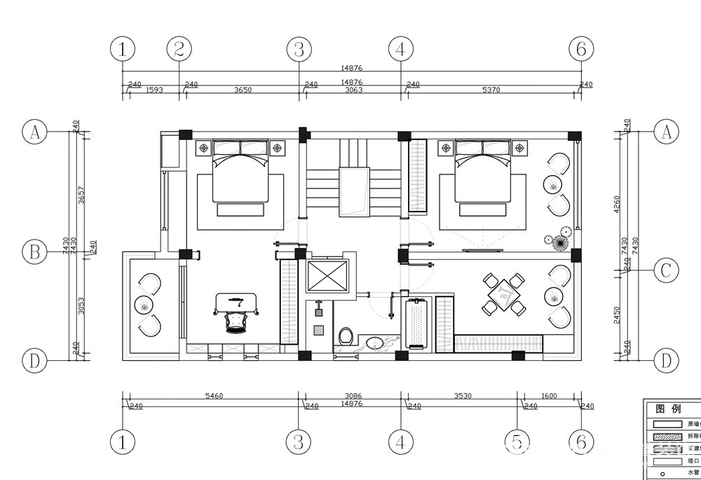
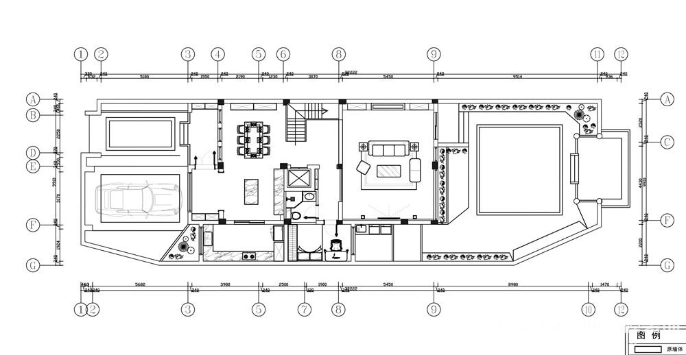
户型图

客厅




餐厅

卧室






京公安网备11010502040911