315㎡别墅简欧风格保利两河森林
发布时间:
2019年09月25日
小区:保利两河森林 面积:315㎡ 户型:别墅 风格:简欧风格
设计说明
张先生对生活的要求属于精神层面,对设计,和生活质量的要求和品质要求都偏高。以简洁明亮为主,以简约、自然的气质为主题,高雅又内涵,体现
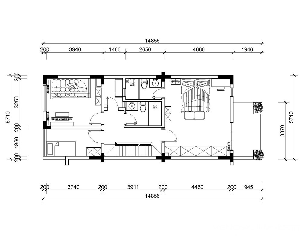
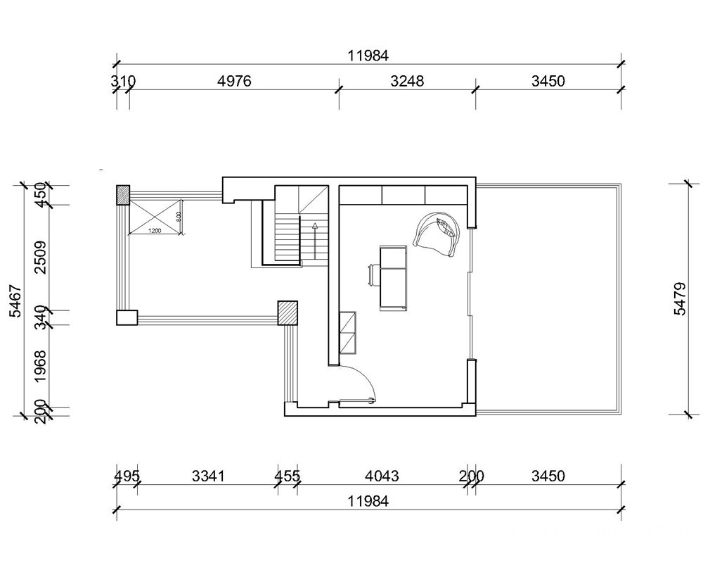
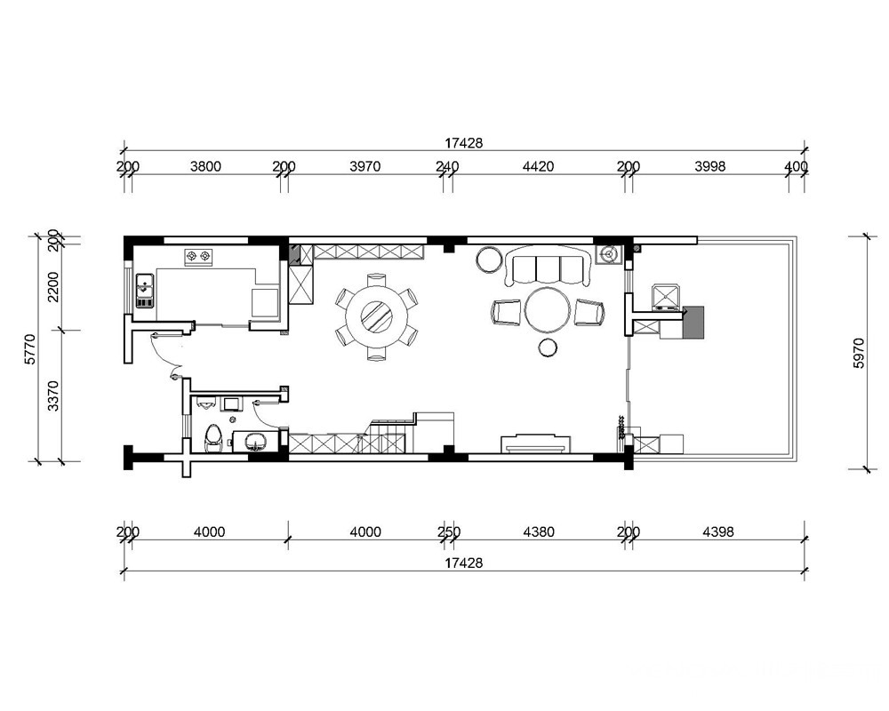
户型图

客厅





餐厅

卧室

张先生对生活的要求属于精神层面,对设计,和生活质量的要求和品质要求都偏高。以简洁明亮为主,以简约、自然的气质为主题,高雅又内涵,体现







