120㎡三居混搭风格卓锦城
发布时间:
2019年09月25日
小区:卓锦城 面积:120㎡ 户型:三居 风格:混搭风格
设计说明
业主有两个可爱的女儿,要求整体空间简洁大方,有强烈的实用性和观赏性,整体方案干净整洁,易打理,较强的储藏能力和色彩明快的简美成了业主的首选。
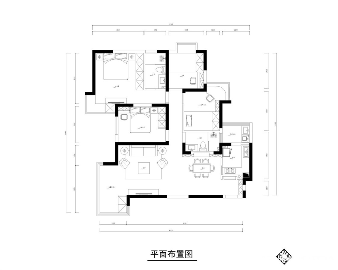
户型图

客厅



卧室

儿童房

业主有两个可爱的女儿,要求整体空间简洁大方,有强烈的实用性和观赏性,整体方案干净整洁,易打理,较强的储藏能力和色彩明快的简美成了业主的首选。





