138㎡三居北欧风格中德英伦联邦
发布时间:
2019年09月24日
小区:中德英伦联邦 面积:138㎡ 户型:三居 风格:北欧风格
设计说明
本方案风格为北欧风格。整个空间通过鲜活又不艳丽的色彩对比,展现明快而简洁的视觉效果,看似简单却十分宜居,让空间多出几分精致的感觉。客厅整体以素色为肌底,深蓝软装跳跃其上,通过色彩的对比将视觉重心下移,营造出舒适放松的家居氛围。
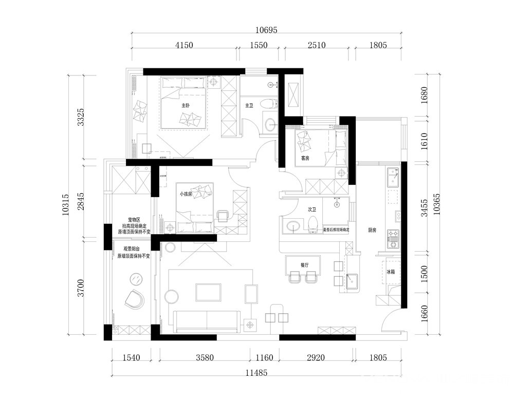
户型图

客厅


卧室






京公安网备11010502040911