135㎡二居混搭风格香堤荣府
发布时间:
2019年09月24日
小区:香堤荣府 面积:135㎡ 户型:二居 风格:混搭风格
设计说明
本方案风格为混搭风格。在家居设计的理念上,相较于创造纯粹的艺术作品,我们更强调对人文的关怀。家不仅是生活、工作或娱乐的场所,同时也是承载家人温情的容器。整屋以温润的木色与黑白灰为肌底,脏粉、亮蓝软装作为空间跳色出现,色彩过渡和谐,在自然光的调和下铺陈出慵懒惬意的生活情境。
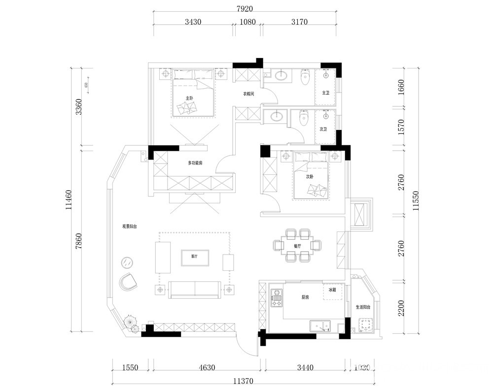
户型图

客厅


卧室






京公安网备11010502040911