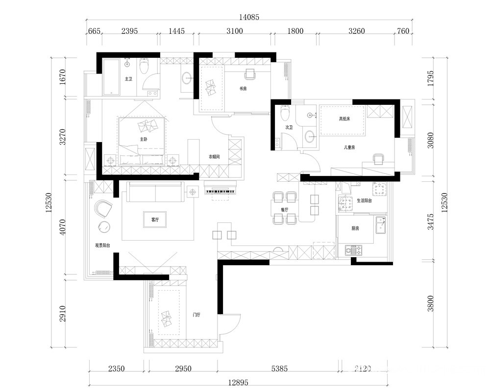
127㎡三居混搭风格顶峰水岸汇景
发布时间:
2019年09月24日
小区:顶峰水岸汇景 面积:127㎡ 户型:三居 风格:混搭风格
设计说明
本案例是位于顶峰水岸,承重墙较少,空间结构易更改;因此我们主要从布局入手重新划分区域,以通铺的浅木色连接各个空间,让家更显宽敞通透的同时又能满足业主的使用需求。整屋以温润的木色与黑白灰为肌底,脏粉、浅蓝软装作为空间跳色出现,色彩过渡和谐,在自然光的调和下铺陈出慵懒惬意的生活情境。
户型图

卧室


客厅






京公安网备11010502040911