126㎡三居混搭风格雅颂居
发布时间:
2019年09月24日
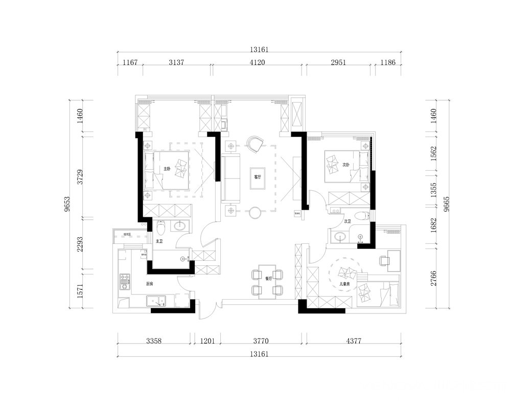
小区:雅颂居 面积:126㎡ 户型:三居 风格:混搭风格
设计说明
本方案风格为混搭风格。从空间尺度、比例、布局各方面出发,与实用功能结合,通过设计手法将家庭成员的生活植入到空间中,营造出轻松自在的家庭氛围。大胆运用高饱和度的色彩,精雕细琢的家具造型,金属、花纹元素,将都市轻盈的气质与现代的华美浓厚糅合,成为摩登时髦具有时代感的家。
户型图

客厅


卧室






京公安网备11010502040911