248㎡三居其他燕岛国际
发布时间:
2019年08月23日
小区:燕岛国际 面积:248㎡ 户型:三居 风格:其他
设计说明
轻奢华,顾名思义,意味着“温和的奢侈”。事实上,它不仅代表了一种美好的生活方式,而且代表了人们正在享受的高质量生活细节。
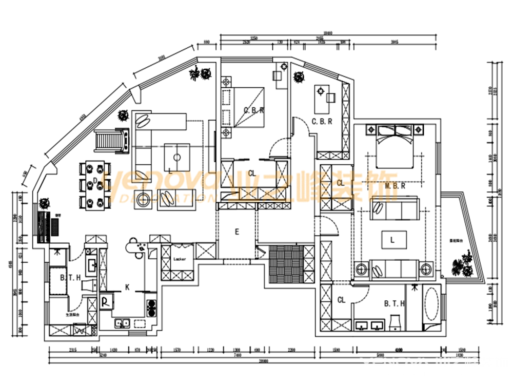
户型图

客厅





卧室


轻奢华,顾名思义,意味着“温和的奢侈”。事实上,它不仅代表了一种美好的生活方式,而且代表了人们正在享受的高质量生活细节。







