134㎡三居现代简约风格鑫江水青花都
发布时间:
2019年07月25日
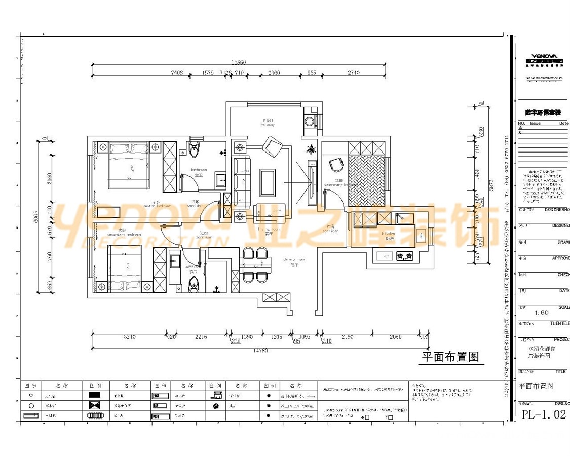
小区:鑫江水青花都 面积:134㎡ 户型:三居 风格:现代简约风格
设计说明
效果图说明:
1:整体色调为灰白色,沙发大胆的使用明亮系的黄色作为整个空间的跳色,抓人眼球,玻璃与金属搭配的茶几彰显个性,更加凸显现代简约风格。 2.餐厅部分单独做了吧台设计,在平时可以作为休闲一脚,既利用了空间,又大大提升了美观程度。3.吊顶部分配合主墙体结构,提高整间屋子的风格,更加精致有氛围,彰显业主品味。
户型图

客厅




餐厅





京公安网备11010502040911