117㎡三居现代简约风格万科青岛小镇
发布时间:
2019年07月18日
小区:万科青岛小镇 面积:117㎡ 户型:三居 风格:现代简约风格
设计说明
本案位于青岛市黄岛区,现代风格的居室重视个性和创造性的表现,即不主张追求高档豪华,而着力表现区别于其他住宅的东西。住宅小空间多功能是现代室内设计的重要特征。与主人兴趣爱好相关联的功能空间这些个性化的功能空间完全可以按主人的个人喜好进行设计,从而表现出与众不同的效果。
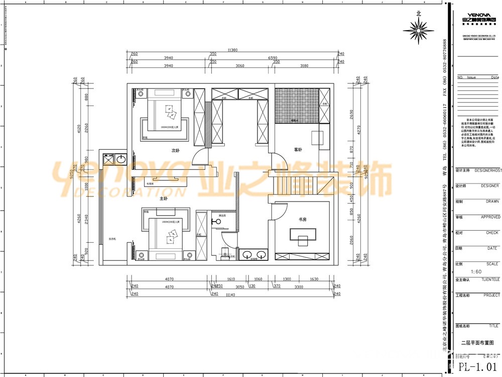
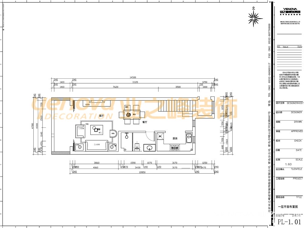
户型图

客厅











京公安网备11010502040911