150㎡三居现代简约风格山海湾
发布时间:
2019年07月18日
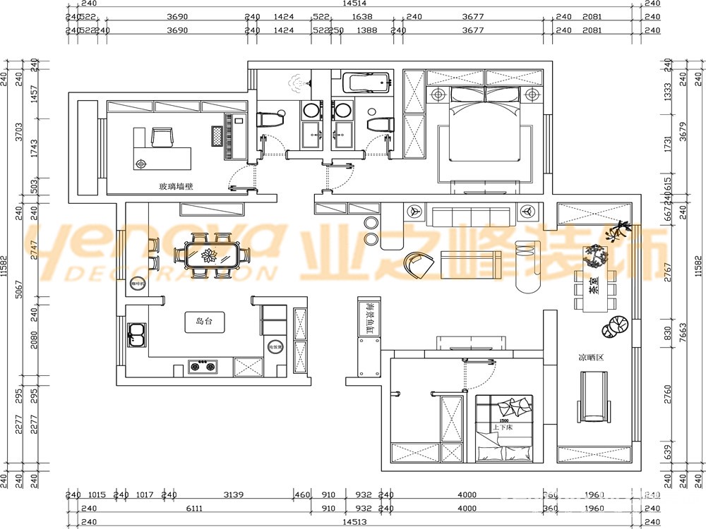
小区:山海湾 面积:150㎡ 户型:三居 风格:现代简约风格
设计说明
本案位于青岛市黄岛区,整体风格为现代风格,以简约的表现形式来满足人们对于简约却不简单的居室环境的要求,由于现代人快节奏、高频率以及满负荷的生活节奏,导致了人们需要在一天的工作之余,想要得到一个简约型的空间来得到一个心灵的放松,希望能够在家中摆脱世俗的繁琐、复杂并且追求简单、自然的的生活状态。
户型图

餐厅


客厅




卧室

书房

衣帽间





京公安网备11010502040911