110㎡三居现代简约风格中正·锦城
发布时间:
2019年07月18日
小区:中正·锦城 面积:110㎡ 户型:三居 风格:现代简约风格
设计说明
本案业主为三口之家,本案整体设计突出“家的温馨”和对生活的热爱感。在功能空间划分上满足了业主的多种生活兴趣以及为孩子营造具有互动式成长教育的家庭环境氛围。客厅是重点,作为家人互动的重要场所,让空间功能最优化、收纳最大化、生活多样化、氛围更温馨,是最大的亮点。
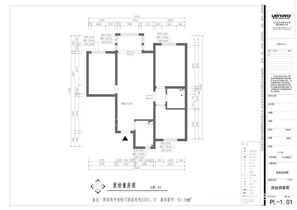
户型图

儿童房

客厅





餐厅






京公安网备11010502040911