122㎡三居现代简约风格玉门河
发布时间:
2019年07月18日
小区:玉门河 面积:122㎡ 户型:三居 风格:现代简约风格
设计说明
本案例围绕家的温馨感来设计,追求朴实无华的居住状态;干净明朗,舒适惬意,体现了家中的仪式感
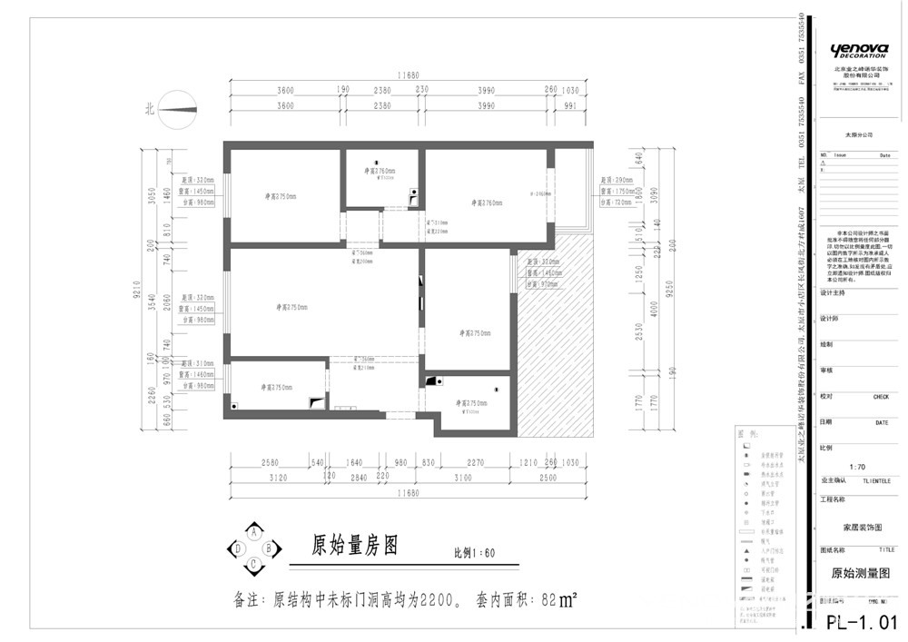
户型图

厨房

卧室


儿童房

玄关

客厅





本案例围绕家的温馨感来设计,追求朴实无华的居住状态;干净明朗,舒适惬意,体现了家中的仪式感










