128㎡三居其他金地悦峰
发布时间:
2019年07月18日
小区:金地悦峰 面积:128㎡ 户型:三居 风格:其他
设计说明
本案以美式为主题,运用时尚与流行元素的结合,体现整个空间的质感与温馨感。客厅时尚大方,尽显明亮整洁。乳胶漆颜色的运用更是借助条形镜的反射,给墙面带来些许灵动与跳跃感。整体装饰搭配美式家具,创造一个温馨、健康的家居环境。
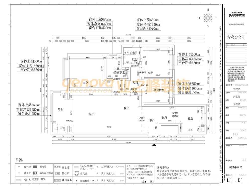
户型图

客厅



餐厅


本案以美式为主题,运用时尚与流行元素的结合,体现整个空间的质感与温馨感。客厅时尚大方,尽显明亮整洁。乳胶漆颜色的运用更是借助条形镜的反射,给墙面带来些许灵动与跳跃感。整体装饰搭配美式家具,创造一个温馨、健康的家居环境。





