143㎡四居混搭风格其他小区
发布时间:
2019年06月22日
小区:其他小区 面积:143㎡ 户型:四居 风格:混搭风格
设计说明
此案例以现代风格和简中式风格的混搭,因为客户喜欢简中式风格,但又接受不了纯种式那么重的色彩与厚重感,所以设计师将风格定位为混搭(现代风格),并整体围绕案例主题发挥设计师的创造性,以满足客户对户型设计的要求,达到客户所期望的效果。
户型合理的运用简单的造型进行搭配,没有复杂的造型简单而又美好。门厅使用灰色调,给人一种素雅的感觉,吊顶就采用简单的灯池吊顶,利用灯光,打造出明亮大方的感觉。之后进入客厅,整体上给人一种现代的感觉,但是在小的细节上又体现了简中式风格的特点。电视背景墙采用简单的线框造型,然后采用大理石进行装饰,电视背景墙的中心位置使用不同的造型,更能体现出现代风格的简单与潮流。相对应的沙发背景墙则没有那么多的造型,简单的线条其余的全部贴素色的壁纸。正所谓简单与复杂相结合,才能营造出和谐的感觉。吊顶采用简单的石膏板直线吊顶,再加上一圈简单的太阳线,简单中体现大方。对于书房而言,需要一个轻松愉悦的空间,墙上简单的线条造型,再加上美式风格家具,和谐的搭配,可以让客户在安静的午后泡上一杯淡茶,静静的享受午后阳光,是一种心灵的享受与精神上的放松。
此案设计满足客户对生活空间品味上的享受,也满足了主人家对日常储物空间的要求,遵循以简单为主,但又不失简洁大方,整体简洁但不失简单,体现了主人家的生活的品味,以及对唯美生活空间的追求。
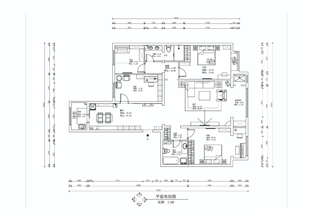
户型图

客厅




玄关

书房





京公安网备11010502040911