260㎡复式简欧风格海尔地产波尔多小镇
发布时间:
2019年06月21日
小区:海尔地产波尔多小镇 面积:260㎡ 户型:复式 风格:简欧风格
设计说明
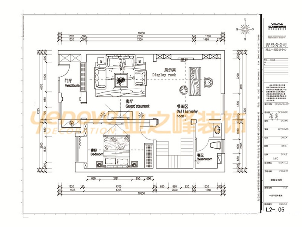
为满足空间的实用性和视觉感,对原户型进行了改造,将厨房和餐厅移至负一,从而一层客厅的区域更加宽裕。二层也推翻了原来的格局,打通墙体,将原来的独立书房改为一个及看书、交谈和看电视为一体的家庭休闲区。在材料选择上,客厅的沙发背景墙采用大花图案的壁纸搭配白色护墙板,用线条简洁的浅色家具搭配天鹅绒绿的单人沙发,进一步提升空间感。
户型图

厨房

书房


卧室


客厅



餐厅





京公安网备11010502040911