560㎡别墅欧式风格前海花园
发布时间:
2019年06月21日
小区:前海花园 面积:560㎡ 户型:别墅 风格:欧式风格
设计说明
本案以欧式风格为主轴,以人文精神为出发点,打造高贵、充满仪式感的韵味,欧式风格往往带有浪漫的基因,摒弃了过于复杂的肌理和装饰,融入人文元素,结合怀古的浪漫情怀与现代人对品质生活的追求,交织出细腻的生活细节与体贴的人工美学。
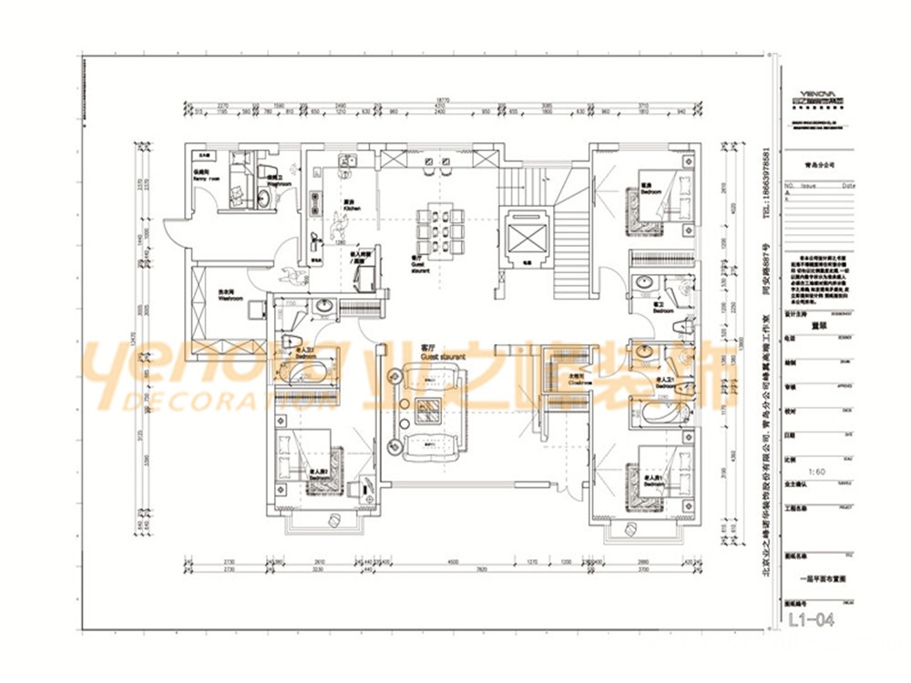
户型图

餐厅

休闲区

书房

玄关

客厅







京公安网备11010502040911