138㎡四居混搭风格绿地国际博览城
发布时间:
2019年06月09日
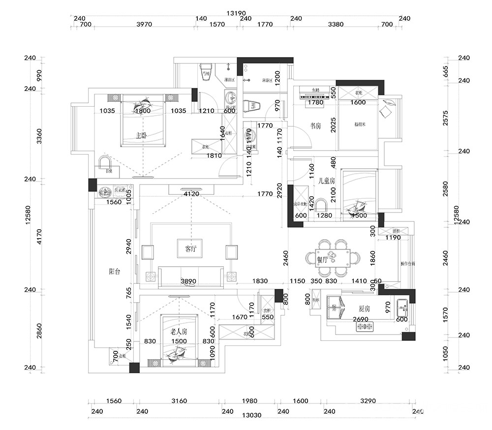
小区:绿地国际博览城 面积:138㎡ 户型:四居 风格:混搭风格
设计说明
装修热线:0791-86296016,此案例是三代同堂共同居住,喜北欧风格但又注重功能性,最后选择了北欧混搭风格,整体造型、结构简练大方,配套自然和谐,色彩淡雅,与其它色彩搭配有很大的相容性,这种立体感和艺术感给人品味超群的印象,多一笔不可,少一笔欠缺,柔美之中却能散发出一种难以估量的力量。
户型图

客厅




餐厅





京公安网备11010502040911