128㎡三居现代简约风格紫林湾
发布时间:
2019年04月12日
小区:紫林湾 面积:128㎡ 户型:三居 风格:现代简约风格
设计说明
现代轻奢设计,更加注重美与实用的双重平衡。本次设计的要点,兼顾家的实用性与美观。从居住的品质感入手,将复杂的设计元素以及设计需求,以简明生动的方式呈现出来。
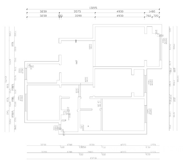
户型图

餐厅




客厅






玄关

卫生间


厨房

现代轻奢设计,更加注重美与实用的双重平衡。本次设计的要点,兼顾家的实用性与美观。从居住的品质感入手,将复杂的设计元素以及设计需求,以简明生动的方式呈现出来。














