120㎡三居现代简约风格阴水坊
发布时间:
2025年11月21日
小区:阴水坊 面积:120㎡ 户型:三居 风格:现代简约风格
设计说明
本方案以 “极简轻奢・松弛栖居” 为核心,以米白、浅灰为基底,融合深棕木纹、黑金属与大理石纹理,通过材质层次与功能一体化设计,构建精致舒适的当代家居场域。
客厅以悬浮电视墙 + 大理石地台整合收纳,线性灯柔化柜体轮廓;米白皮质沙发搭配黑白灰软饰,玻璃茶几与圆墩脚凳平衡视觉,点光源 + 磁吸轨道灯实现照明与氛围双适配,艺术挂画为空间注入艺术张力。
卧室以 “静谧休憩” 为导向:主卧室软包床头墙为核心,米白床体配浅灰床品,深棕抱枕形成色彩落点;次卧室借简约陈设与柔光强化静谧感,墙面装饰画呼应整体调性。
书房嵌入式 L 型书桌衔接柜体,深棕桌面与金属座椅形成材质对比,棋盘格地毯提升办公舒适度;餐厨区以玻璃隔断增通透感,极简餐桌配黑白餐椅,与厨房柜电配色呼应,保障互动性的同时统一风格。
衣帽间悬浮架嵌氛围灯,兼顾收纳与轻奢;梳妆区智能镜 + 金属凳添精致细节。整体去繁就简,于极简框架植入轻奢细节,适配生活需求的同时,营造松弛高级的居住氛围。
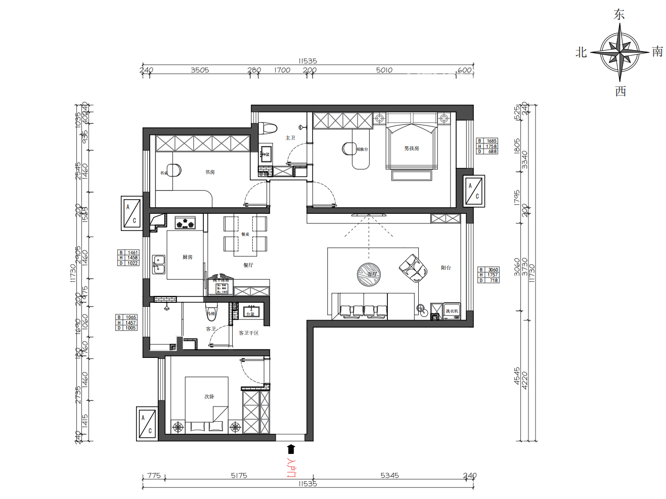
户型图

卧室



客厅








京公安网备11010502040911