105㎡三居现代简约风格恒运大厦
发布时间:
2025年12月27日
小区:恒运大厦 面积:105㎡ 户型:三居 风格:现代简约风格
设计说明
现代简约风小户型设计的核心理念是 “化繁为简、功能优先、空间扩容”,通过精简元素、优化布局实现小空间的高效利用与舒适感。摒弃复杂的装饰线条与堆砌式软装,用简洁的几何造型、纯色墙面(如白、浅灰、暖棕)打底,减少视觉拥堵。
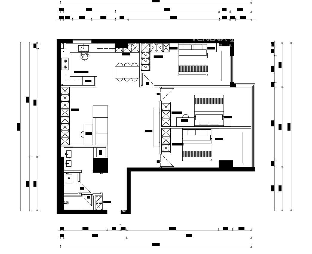
户型图

书房


餐厅


大厅




主卧室


次卧室

卫生间


厨房





京公安网备11010502040911