91㎡二居中古风格林达英冠乐创城
发布时间:
2025年12月27日
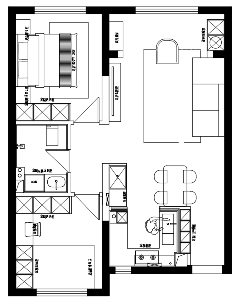
小区:林达英冠乐创城 面积:91㎡ 户型:二居 风格:中古风格
设计说明
以两室一厅的空间为载体,将胡桃木的复古肌理与奶油色的柔和质感碰撞融合,在封闭式厨房的功能框架下,半封闭式厨房运用了高透玻璃隔断,形成了封闭厨房及解决了油烟问题,也解决了不透光的问题打造兼具复古韵味与日常温度的现代居家空间。平衡胡桃木的厚重感,让空间既保留中古的经典质感,又充满奶油风的治愈氛围,实现好看与好住的双重需求。
户型图

大厅





餐厅



主卧室


次卧室

厨房


卫生间






京公安网备11010502040911