148㎡三居现代简约风格远洋国际中心
发布时间:
2019年04月11日
小区:远洋国际中心 面积:148㎡ 户型:三居 风格:现代简约风格
设计说明
本案在设计时,和叔叔阿姨多次沟通交流,业主夫妻两都是高校退休教授,虽年过6旬,确有着热爱生活,充满年轻活力的心。希望装修风格简洁大方,稳重。
倾向于新中式,但又不喜欢过于厚重的中式红木家具。喜欢简洁,但又不能过于简单。
喜欢烹饪,中餐西点,拒绝重口味的油炸煎炒。
喜欢室内开阔,但空间要划分明确。
在经历4个月的努力,打造出他们想要的家。
家,是每个人的港湾,温暖的,舒适的,港湾。
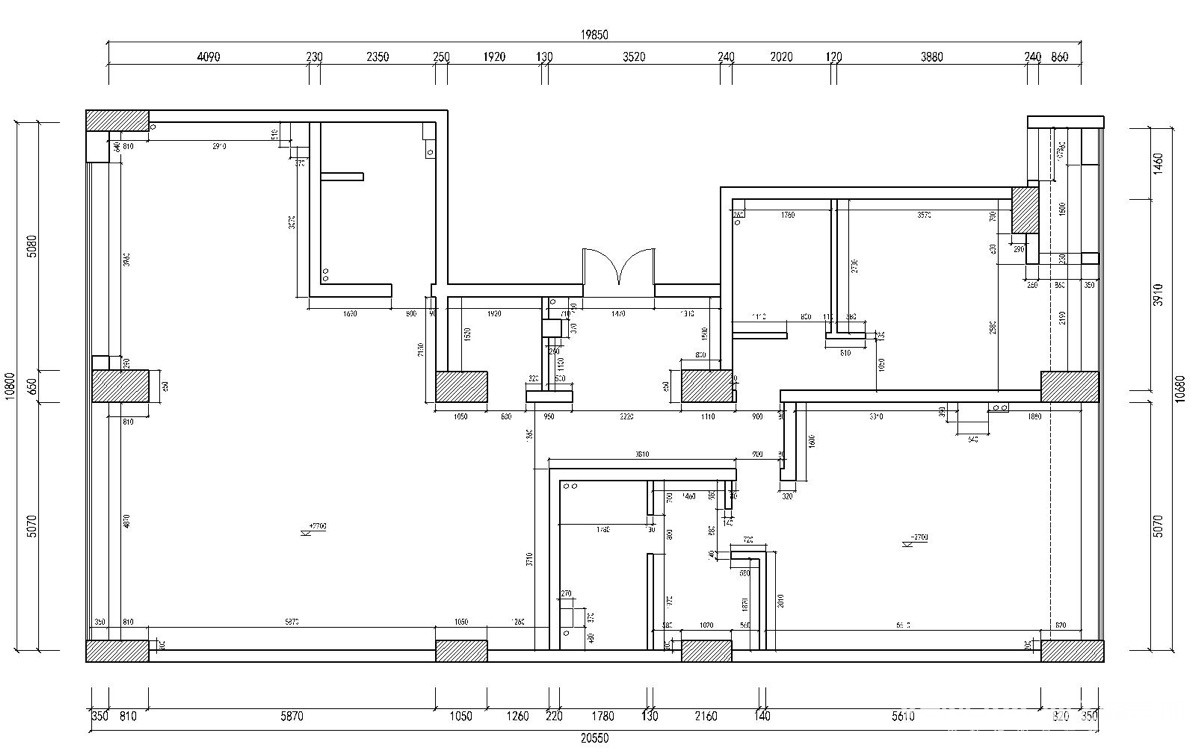
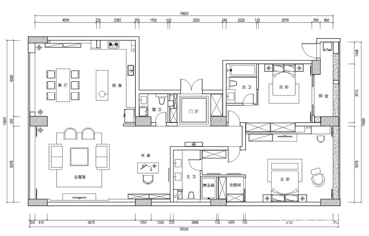
户型图

客厅




书房

厨房

餐厅






京公安网备11010502040911