170㎡复式现代简约风格鹭洲国际
发布时间:
2019年03月28日
小区:鹭洲国际 面积:170㎡ 户型:复式 风格:现代简约风格
设计说明
成都业之峰装饰轻奢风格作品:本案为白色木饰面搭配轻金属营造轻奢感,加以石膏线条与墙板作为硬装装饰。配以暖色和冷色作为撞色,凸显了整个空间的大气与时尚。
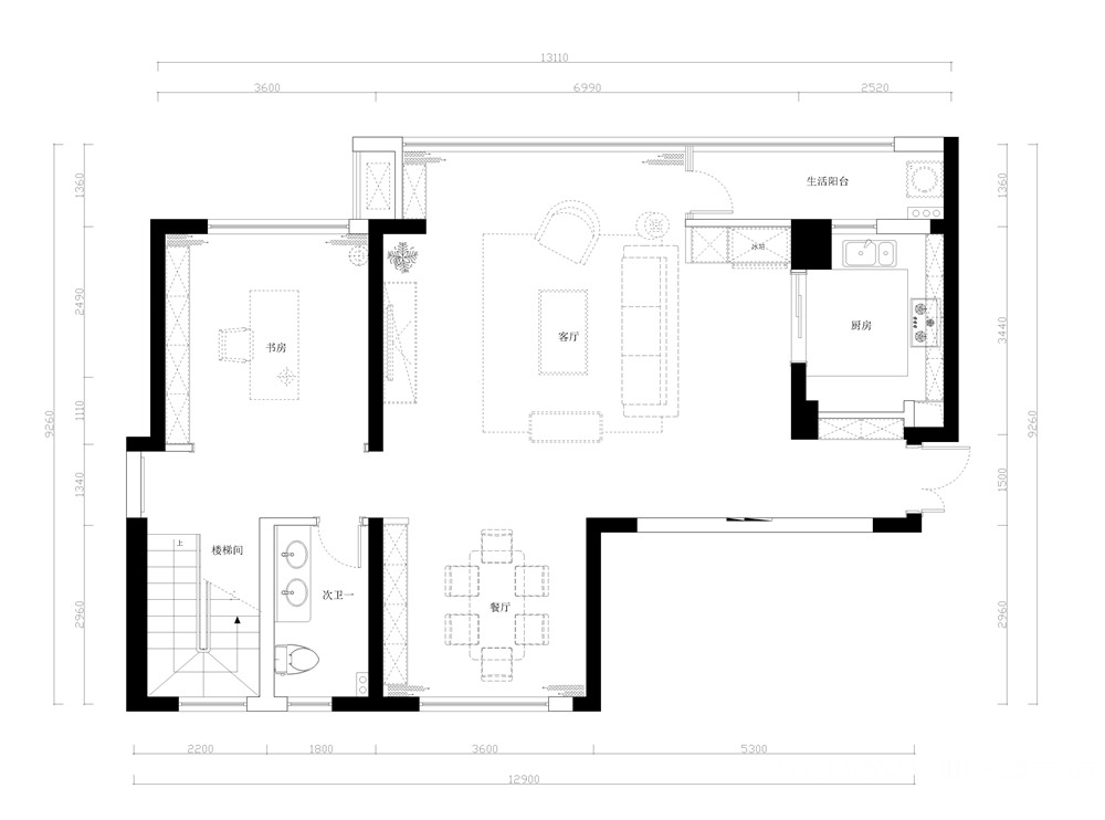
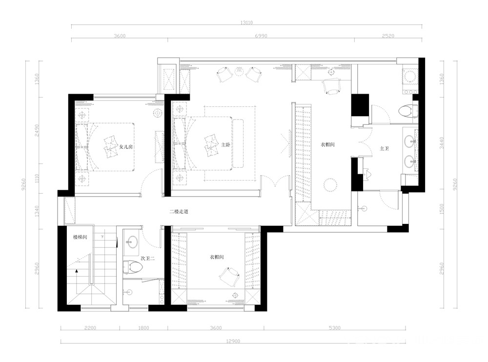
户型图

客厅




卧室

成都业之峰装饰轻奢风格作品:本案为白色木饰面搭配轻金属营造轻奢感,加以石膏线条与墙板作为硬装装饰。配以暖色和冷色作为撞色,凸显了整个空间的大气与时尚。





