163㎡四居美式风格蓝光雍锦园
发布时间:
2019年03月28日
小区:蓝光雍锦园 面积:163㎡ 户型:四居 风格:美式风格
设计说明
成都业之峰装饰装修设计作品:风格倾向定位为现代美式风格,整体以蓝色作为主色调,在配以红色作为跳色,冷暖色调相搭配让整个空间更加的年轻化、个性化。
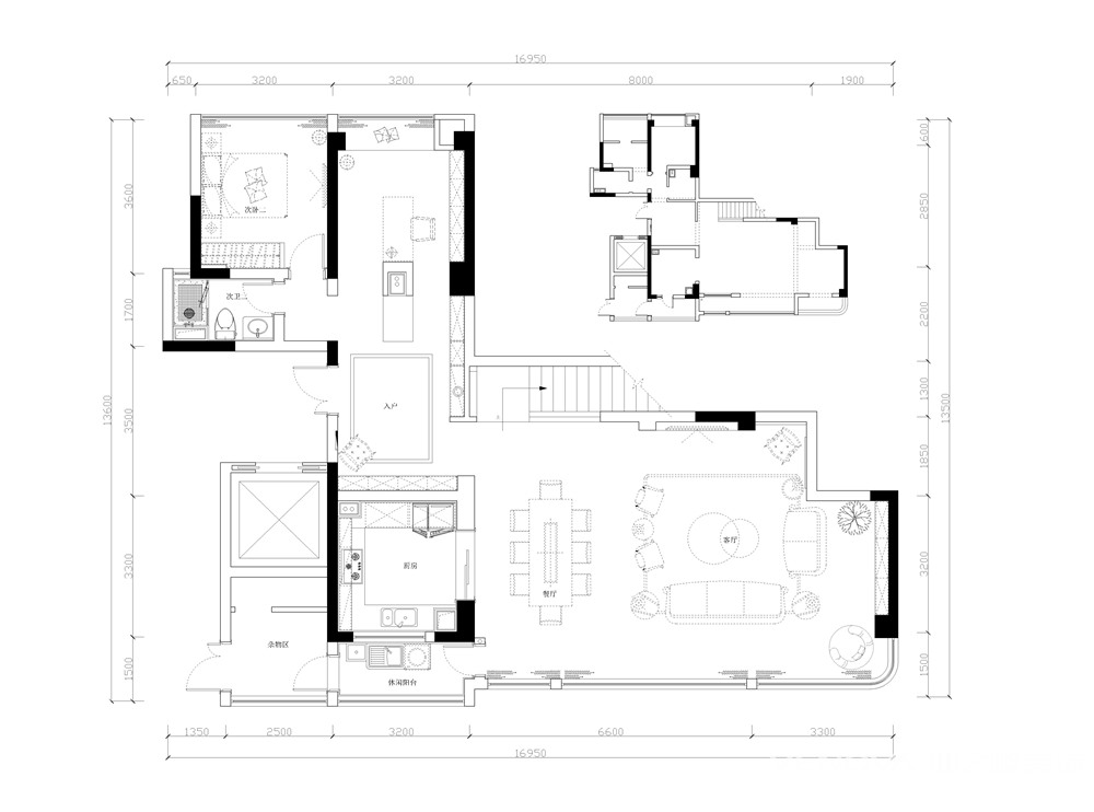
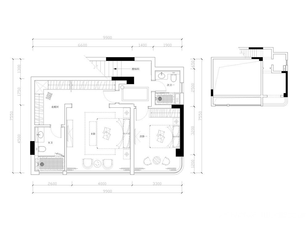
户型图

客厅




卧室

成都业之峰装饰装修设计作品:风格倾向定位为现代美式风格,整体以蓝色作为主色调,在配以红色作为跳色,冷暖色调相搭配让整个空间更加的年轻化、个性化。





