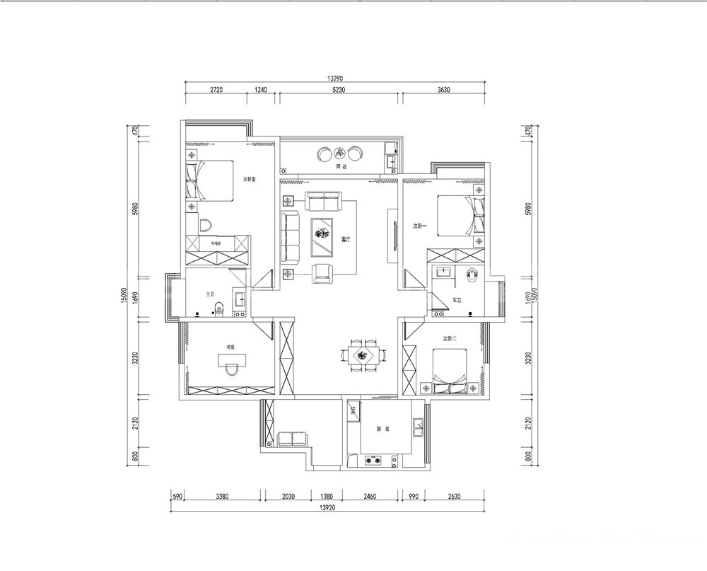
180㎡平层案例库
发布时间:
2018年12月27日
小区:案例库 面积:180㎡ 户型:平层 风格:
设计说明
本案是城市新天地180平户型,一对年轻夫妇,对设计及风格接受度高。整体设计风格定位为现代轻奢,
色调以黑白灰为主,线条流畅,简约,体现现代时尚之美感!
客厅









本案是城市新天地180平户型,一对年轻夫妇,对设计及风格接受度高。整体设计风格定位为现代轻奢,
色调以黑白灰为主,线条流畅,简约,体现现代时尚之美感!








