300㎡别墅南阳装修南召案例
发布时间:
2018年12月27日
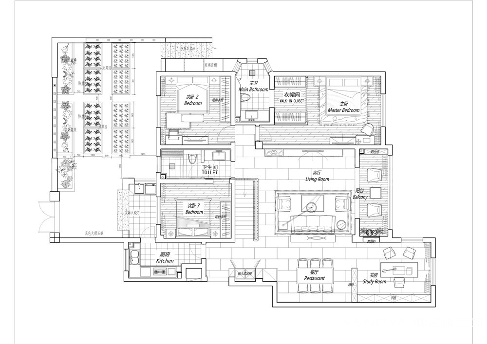
小区:南阳装修南召案例 面积:300㎡ 户型:别墅 风格:
设计说明
当意大利百年积淀的设计理念和传统经典的匠心,与极简主义碰撞后,形成了独有的精致简约,又高贵奢华的气质,意大利设计开始从北欧设计风格中脱颖而出,形成了独具地域特色的家具风格。
客厅













当意大利百年积淀的设计理念和传统经典的匠心,与极简主义碰撞后,形成了独有的精致简约,又高贵奢华的气质,意大利设计开始从北欧设计风格中脱颖而出,形成了独具地域特色的家具风格。












