112㎡三居北欧风格西站瑞都
发布时间:
2018年09月23日
小区:西站瑞都 面积:112㎡ 户型:三居 风格:北欧风格
设计说明
设计说明:业主是很年轻的两对夫妻,为了给孩子一个更好的生活空间,选择了以北欧为风格的装修设计。墙面以高级灰为底色,简约而不简单,配上北欧风格装饰画,让整个效果更加温馨大方。
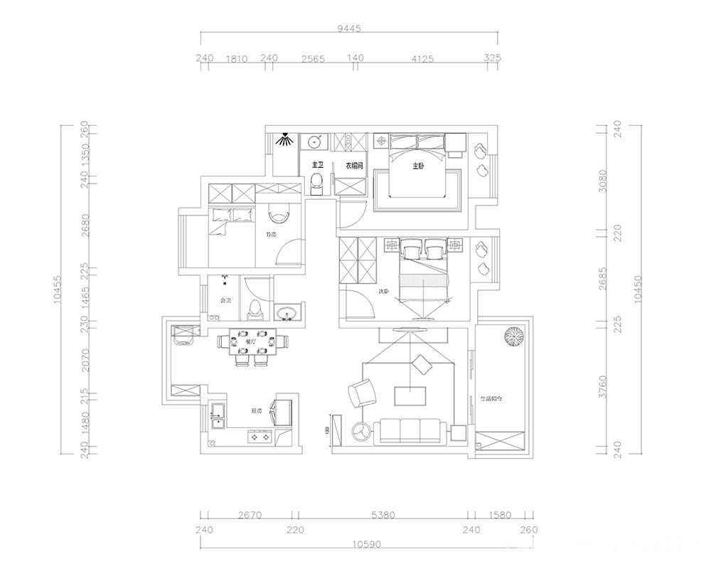
户型图

客厅





餐厅


卧室

设计说明:业主是很年轻的两对夫妻,为了给孩子一个更好的生活空间,选择了以北欧为风格的装修设计。墙面以高级灰为底色,简约而不简单,配上北欧风格装饰画,让整个效果更加温馨大方。








