115㎡三居北欧风格万达文化旅游城
发布时间:
2018年09月23日
小区:万达文化旅游城 面积:115㎡ 户型:三居 风格:北欧风格
设计说明
设计说明:本案例业主是一对年轻的父母,刚有了小宝宝,对房子最大的要求就是环保,不喜欢复杂的装饰和繁琐的造型。希望给小宝宝一个温暖的成长的环境。经过沟通,最后定下做北欧风格。温馨而不简单。
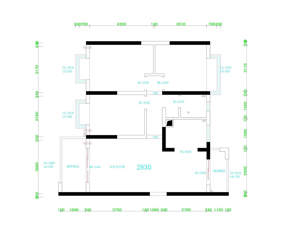
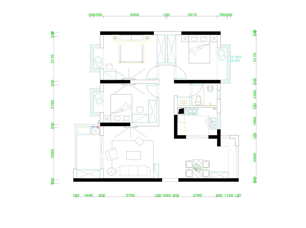
户型图

客厅






卧室

餐厅

设计说明:本案例业主是一对年轻的父母,刚有了小宝宝,对房子最大的要求就是环保,不喜欢复杂的装饰和繁琐的造型。希望给小宝宝一个温暖的成长的环境。经过沟通,最后定下做北欧风格。温馨而不简单。








