145㎡三居美式风格金湖听语
设计说明
项目名称:小资简美——金湖听语
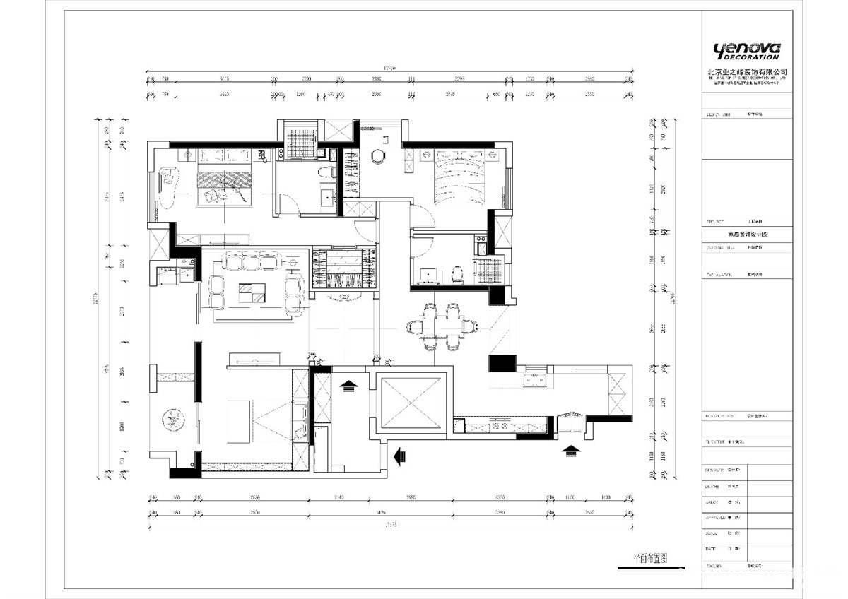
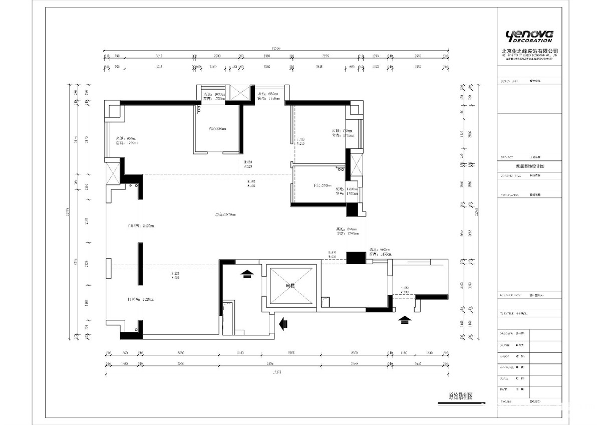
建筑面积:145㎡
装修风格:简美风格
设计师:雷伟
代表作品:招商公园、恒大绿洲、世纪江尚等。
设计理念:设计来源与生活,并高于生活。
擅长风格:现代简约、新中式、欧式,美式。
本套案例为简美风格,整体基调温馨简洁大方。
本案例背景是:业主是一对40岁左右的夫妻,两人多年相濡以沫,感情非常好,金湖听语作为他们改善型住房,从选址就透着对彼此的爱以及未来20年的规划和新家的期待。此户型南北通透,临湖。夫妻事业单位,有一个高中的儿子,一家三口。需求是:3间房,两间卧室,一间书房,房子优点,南北通透、采光好,房子缺点是无厅感,鞋柜收纳区域不明,没有玄关背景。因为是改善型住房,女主人希望通透、有品质、大厨房、住着舒服有格调。
原始户型剖析该户型厨房小,小阳台意义不大,厨房采光一般。进门厅感不强,一眼看得到主卧。大户型却显得小气。设计亮点:1拆掉现有厨房门、阳台门,直接打通,扩大厨房并做了中西功能分区。厨房更改了强弱电箱的位置,更换到冰箱侧面,释放厨房墙面,提高利用率。利用小阳台门凹进去的位置放置有滑轮的冰箱。既充分利用空间又解决安全隐患。2电梯口对面加了一排鞋柜,该户型一梯一户,电梯对面是空的还有消防门,做了一排储物柜,既装饰了消防门,又增加储物空间,尤其是加厚双排鞋柜,让放置鞋子数量倍增。3进门的地方设计了一个门厅玄关,加强了厅感。也让主卧套房增加了一个衣帽间。让主卧空间释放出来,更敞亮。加强采光、通风,让主卧舒适。4将大阳台的空间分割成为晾晒区以及书房休闲阳台。方便观湖观景。
色彩效果:业主夫妇是温文尔雅,相濡以沫,思想活跃,品味优雅,业主儿子高中,学业压力大,卧室设计了书桌、隔断书柜兼展示的作用。在色调上卧室选用的是奶咖色乳胶漆,卧室是私密空间,更多的想营造的氛围是放松、温馨、舒适的感觉。本案的设计手法想凸显家庭轻松氛围,同时满足业主功能性区分的要求,浅灰、深蓝、浅咖、橘粉、奶绿。
风格定位:选择简美风格,简洁明快,又有凸显的重点,整体感觉是宽敞、开放、明亮、又有青春活泼的感觉。
设计亮点:在于格局更明朗,功能分区明显,通风采光良好,色调舒服,设计上精于心,简于形符合业主需求。
配饰:家具上选用实木深咖色家具,成套的布艺软装,美式铜灯,茶几、地灯、田园装饰画等,软装选用奶绿、孔雀蓝、奶咖、蓝色,整个氛围简洁清秀。














京公安网备11010502040911