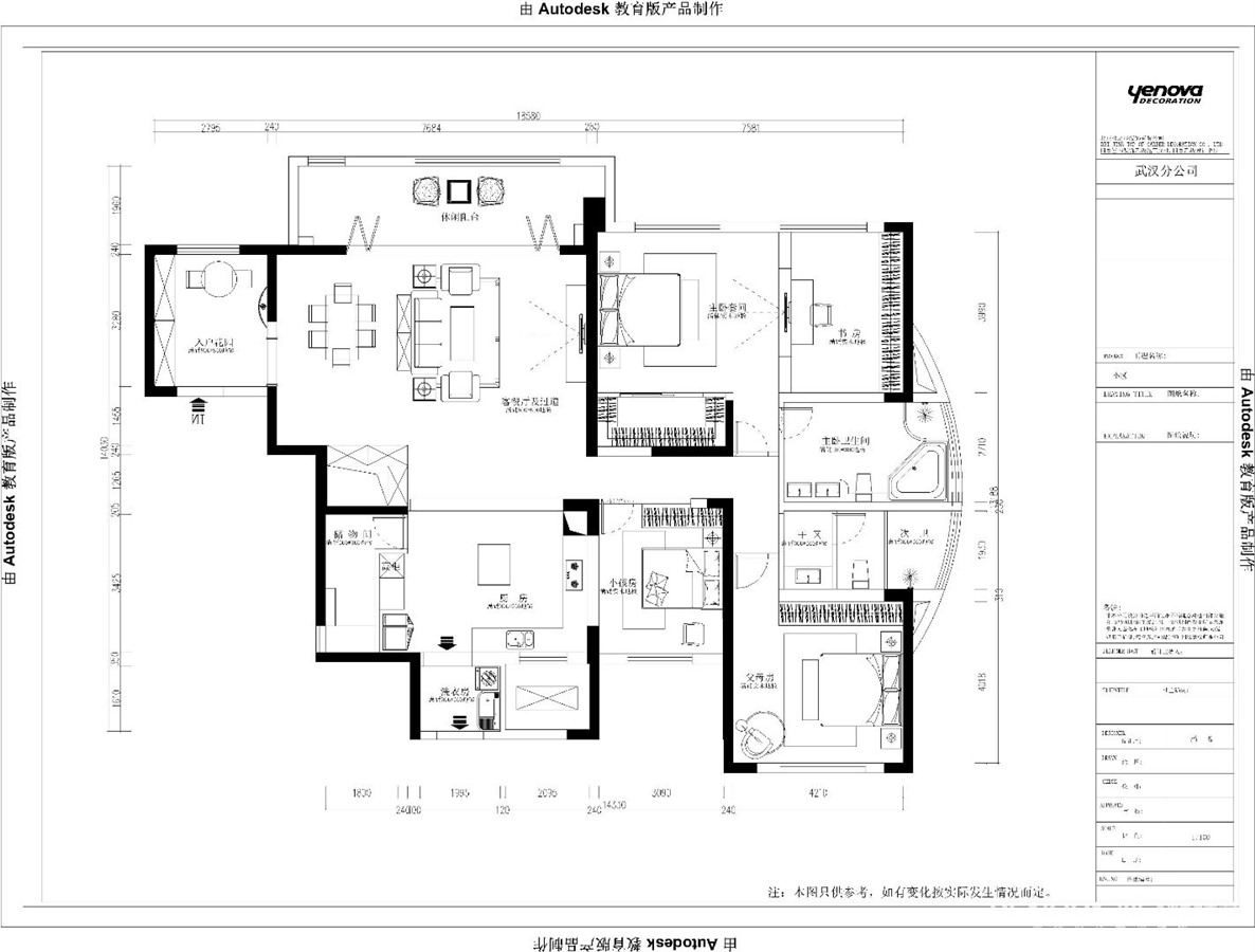
255㎡四居港式风格月湖琴声
发布时间:
2018年08月04日
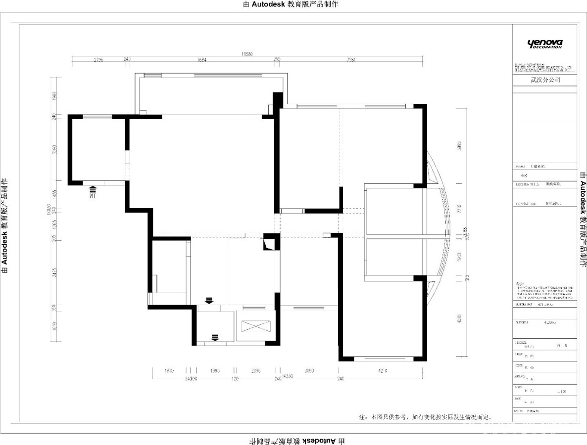
小区:月湖琴声 面积:255㎡ 户型:四居 风格:港式风格
设计说明
业主是一对年轻夫妻,女主人很时尚,喜欢简单一点,色彩鲜艳一点的感觉。可能很多时候大家想到现代风格都会联想到大面积的镜面反光金属材质,为了营造一种温馨而又时尚的感觉,我放弃了镜面材质的使用,选择了简单大方的暖色系饰面板,在软装家具上使用了一款弧形的沙发配上几个颜色跳跃的抱枕,让整个空间更富有乐趣和时尚感
整个风格定义为港式风格家居风格,如果将整个居室的室内设计比喻成一部耐人寻味的电影的话,那么家居设计就是这电影中时时出现在关键时刻的电影配乐,或者说插曲。电影插曲总在最打动人心的时刻出现,有着画龙点睛的作用。家居饰品也一样,它点染居室的风格,烘托居室的格调,平衡居室内色彩、图案、明暗、大小等多方关系,是室内装修中不可或缺的重要组成部分。
香港的室内设计潮流多以现代为主,大多色彩冷静、线条简单如果您觉得这种过于冷静的家居格调显得不够柔和,您就需要有一些合适的家居饰品来协调、中和这种冷静。
客厅












京公安网备11010502040911