210㎡四居混搭风格世纪城天鹅湖
发布时间:
2017年07月23日
小区:世纪城天鹅湖 面积:210㎡ 户型:四居 风格:混搭风格
设计说明
“我要我家温馨大气”“我要我家休闲怡情”本案常住人口温馨的小两口,对品质要求很高,同样对于整体呈现要求也很高
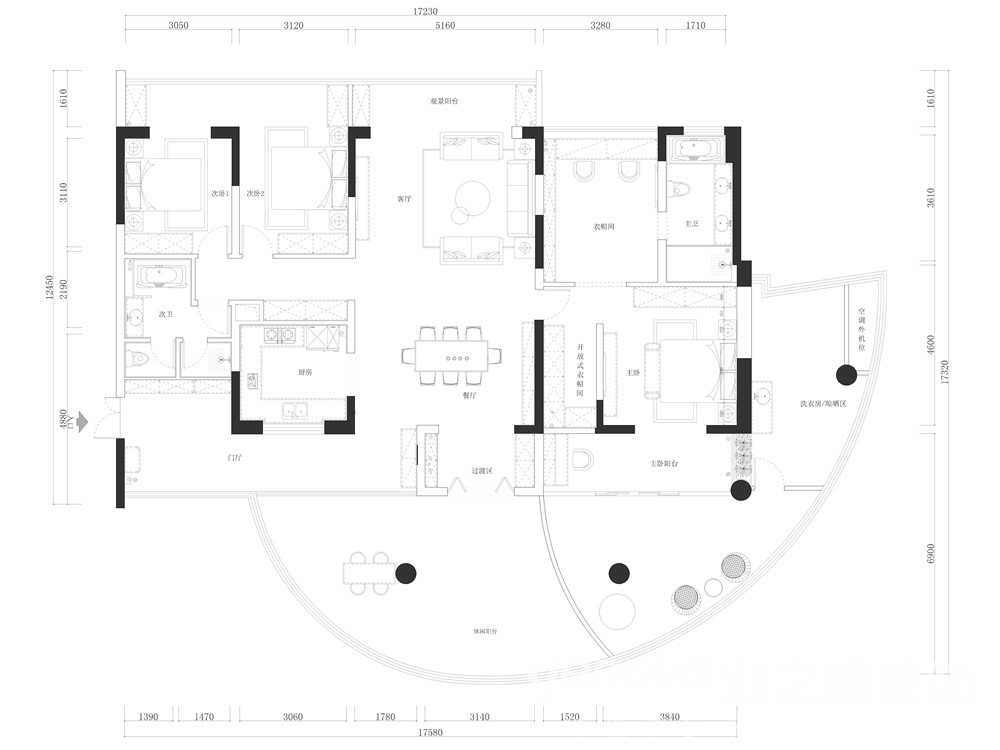
户型图

客厅



卧室



卫生间


厨房

阳台


书房

“我要我家温馨大气”“我要我家休闲怡情”本案常住人口温馨的小两口,对品质要求很高,同样对于整体呈现要求也很高












