151㎡四居简欧风格紫汀苑
发布时间:
2017年07月02日
小区:紫汀苑 面积:151㎡ 户型:四居 风格:简欧风格
设计说明
户主是一位时尚的中年人,通过前期和业主的大致沟通,将风格定位为简欧。简欧风格的核心是去繁就简,留下简单的线条和几何图案,以冷色调为主,整个空间配色以浅色为主,多以象牙白为主色调,以浅色为主深色为辅。相对比拥有浓厚欧洲风味的欧式装修风格,简欧更为清新、也更符合业主内敛的审美观念。
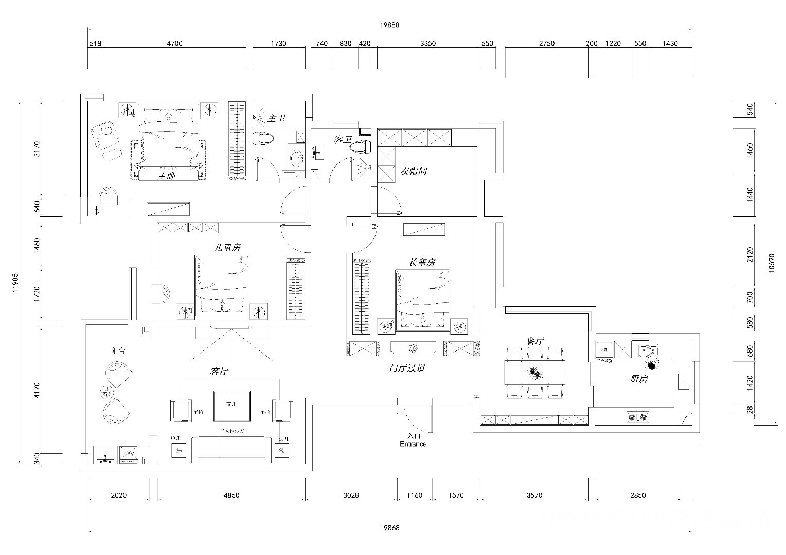
户型图

客厅



玄关

卧室

餐厅





京公安网备11010502040911