141㎡五居华侨城天鹅堡
发布时间:
2017年07月02日
小区:华侨城天鹅堡 面积:141㎡ 户型:五居 风格:
设计说明
户主是刚结婚的小两口,喜欢充满浪漫温馨的美式风格。美式风格设计的浪漫温馨则一般体现在其家具上,不但表现在美式家具的材质上,还表现在它给予人的整体感觉上。在一些美式风格家具中,涂饰上往往会采用做旧的工艺处理。在这些家具的造型上,在保留了美式风格家具的古典色泽和质感的同时,时常还可以看到华丽的枫木滚边、胡桃木的镶嵌线、扭扣般的手把以及模仿动物形状的家具脚腿造型等。
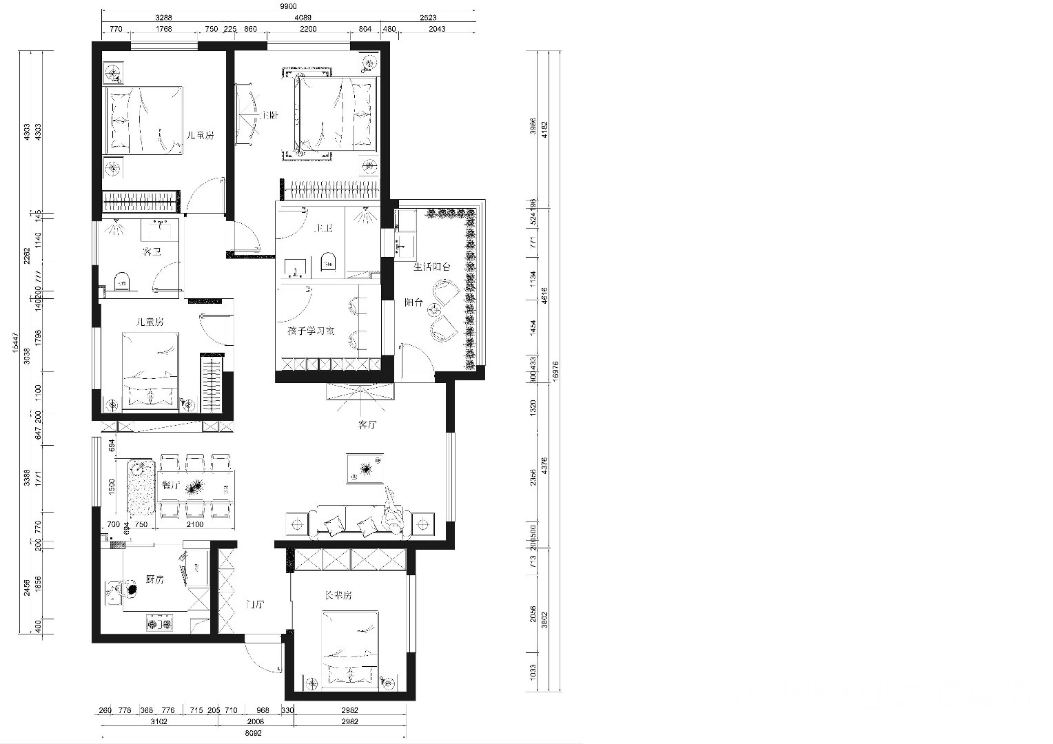
户型图

客厅



玄关

儿童房

餐厅

卧室





京公安网备11010502040911