145㎡四居简欧风格世茂天城
发布时间:
2017年06月30日
小区:世茂天城 面积:145㎡ 户型:四居 风格:简欧风格
设计说明
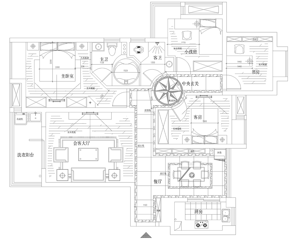
业主是一对年轻的夫妇,初次看到这个户型的时候感觉户型很好 南北通透。但是业主有个特殊的要求,希望主卧卫生间房一个圆形的浴缸。但是原来的卫生间明显没有那么大的空间。其他的房间空间都比较小,仔细考虑后觉得可以借用过道的空间,但是又不能让过道显得拥挤,所以在中间做了一个圆形的中央玄关,整个过道更加通畅,效果更美观,又达到了业主的需求。
户型图

客厅



卫生间

卧室

餐厅





京公安网备11010502040911