120㎡三居简欧风格保利香槟
发布时间:
2017年06月30日
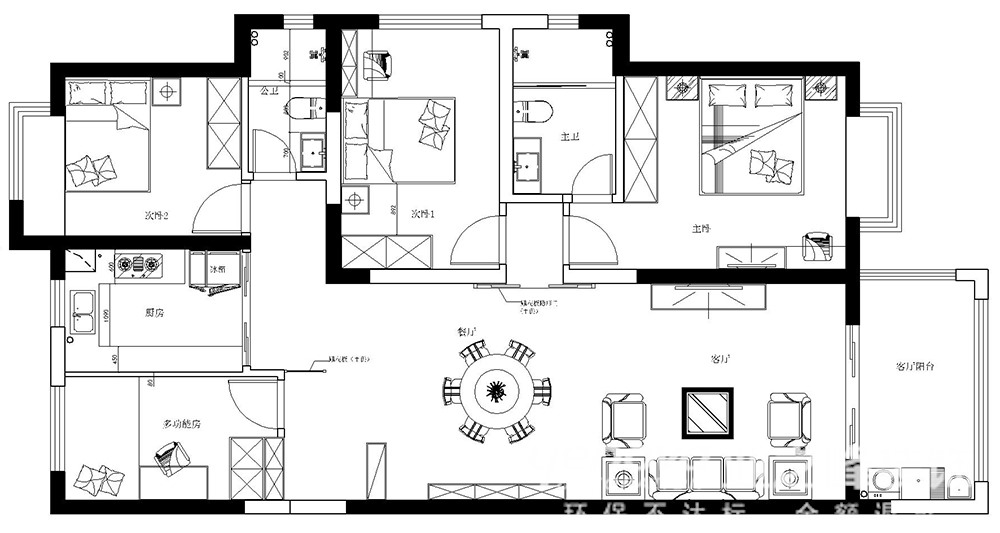
小区:保利香槟 面积:120㎡ 户型:三居 风格:简欧风格
设计说明
此设计方案风格倾向定位为简欧风格,居室中所出现的电器皆为紧跟时代潮流的产品。本案的设计重点是会客空间与入户区域、餐厅以及过道空间互通与交流,从设计手法上采用了从墙面上的线与面的衔接呼应,以及顶面的空间的虚拟划分,达到各功能空间融会贯通的目的。简欧风格的唯美精致与大气时尚以及线条造型的结合在本案中得到了淋漓尽致的体现。
户型图

客厅



卧室





京公安网备11010502040911