545㎡别墅新中式风格牧山丽景
发布时间:
2017年06月22日
小区:牧山丽景 面积:545㎡ 户型:别墅 风格:新中式风格
设计说明
此设计方案的业主是同父母、儿女居住,需要完整的娱乐空间,喜欢喝茶,注重设计;风格定位为简约中式,造型一定要简约、时尚。在空间布局上,紧靠着科学的设计原则,保持最大限度的利用好自然的采光,通风,同时照顾人在空间中的生活习性。居室中所出现的电器皆为紧跟时代潮流的产品,如3D云电视、中央净水系统、中央空调、环绕立体音响等。设计重点在于客餐厅的衔接上,融合中式构成元素,在保证基本功能实用性基础上,以简洁的线条表现形式美,传达主人的生活文化背景。
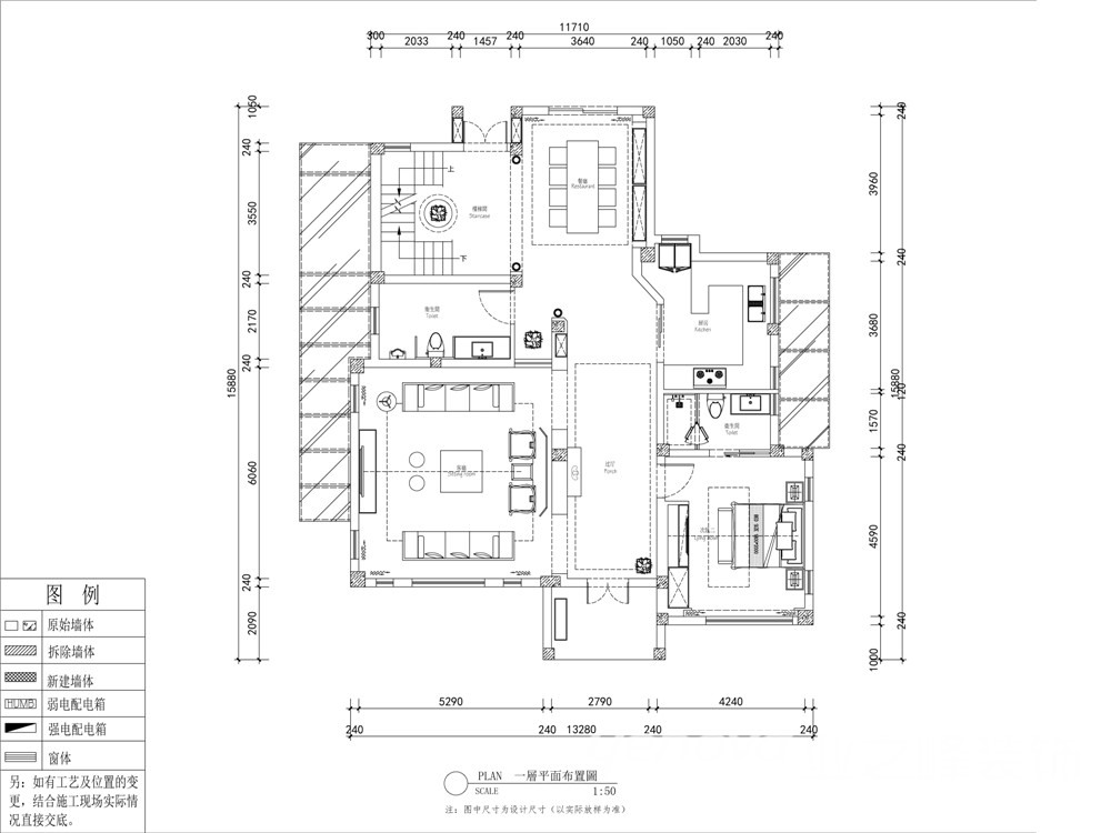
户型图

客厅



休闲区


卧室





京公安网备11010502040911