110㎡三居中城国际社区
发布时间:
2017年06月22日
小区:中城国际社区 面积:110㎡ 户型:三居 风格:
设计说明
业主是80后海归,希望自己的家有不同于传统假装的轻奢范。本案使用了石材、硬包和铝合金线条来突出质感,但在氛围灯光和材质颜色选择暖色,与冰冷的石材和金属线条形成对冲,营造出良好的居家环境。
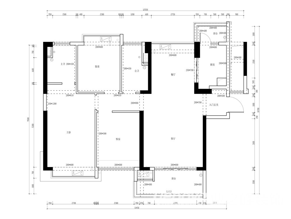
户型图

卧室

客厅





业主是80后海归,希望自己的家有不同于传统假装的轻奢范。本案使用了石材、硬包和铝合金线条来突出质感,但在氛围灯光和材质颜色选择暖色,与冰冷的石材和金属线条形成对冲,营造出良好的居家环境。






