400㎡别墅重汽莱蒙湖
发布时间:
2017年06月21日
小区:重汽莱蒙湖 面积:400㎡ 户型:别墅 风格:
设计说明
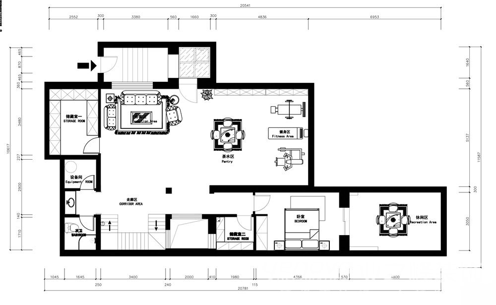
一层平面布置图
▲淡雅的瓷砖、饱满的沙发、时尚的配饰使整个家清爽宜人
▲客厅餐厅完美结合在一起,装饰柜又使餐厅自成一体
▲将绿植珍藏,闲坐于屋内,品茶赏景,别有一番惬意
▲温和灯光,素净色彩,打造一个舒适安静的用餐环境
▲玄关是客厅的过渡空间,是住宅的必经之处,更能体现主人的气质与生活品质
▲简单搭配,素雅的壁纸,给人一个温馨的休息场所
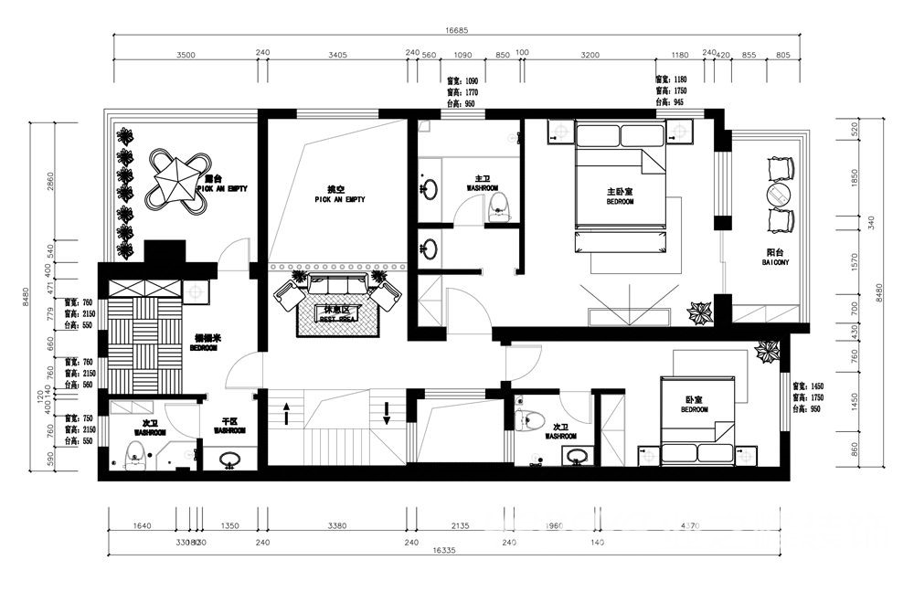
二层平面布置图
▲独特挂饰搭配特色地毯、加以点缀的绿植使空间浪漫、高贵
▲僻静一处,放置两三草木,雅致盎然
▲独处一隅,品淡淡茗香
▲以深色地板呈现沉稳个性,配以色调丰富的挂画,让空间整体更加轻盈生动
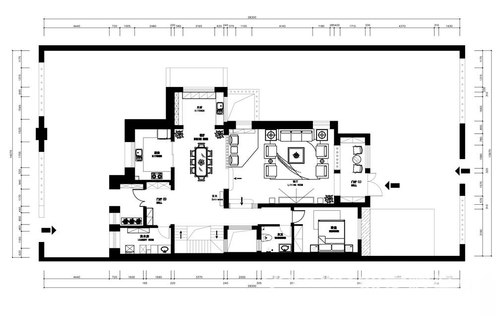
户型图

客厅





衣帽间

阳台

休闲区




餐厅


楼梯

卧室





京公安网备11010502040911