106㎡三居简欧风格 金沙府邸
发布时间:
2017年06月21日
小区: 金沙府邸 面积:106㎡ 户型:三居 风格:简欧风格
设计说明
本方案为简欧风格,从简单到繁杂、从整体到局部,精雕细琢给人一丝不苟的印象,任然可以很强烈的感受传统的历史痕迹与浑厚的文化底蕴同时又摒弃了过于复杂的机理与装饰,简化了线条。
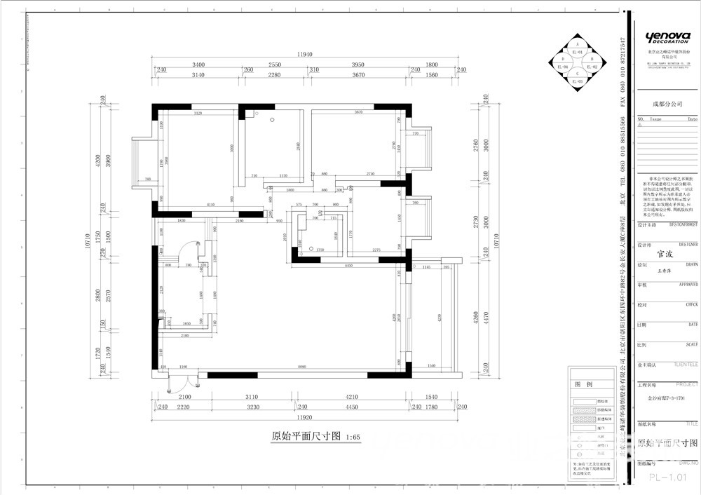
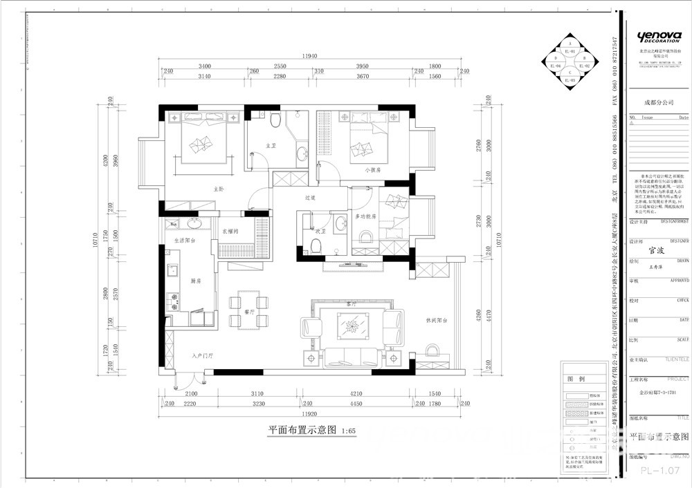
户型图

客厅










本方案为简欧风格,从简单到繁杂、从整体到局部,精雕细琢给人一丝不苟的印象,任然可以很强烈的感受传统的历史痕迹与浑厚的文化底蕴同时又摒弃了过于复杂的机理与装饰,简化了线条。










