119㎡三居美式风格盛邦大都会
发布时间:
2017年04月08日
小区:盛邦大都会 面积:119㎡ 户型:三居 风格:美式风格
设计说明
风格定义为美式休闲, 家不仅仅是温暖放松的港湾,更是许多灵感的迸发地,当步入这座公寓时,一定会被它清新充满活力的气息所感染,不论四季变迁,严寒或酷暑,这里却只属于令人陶醉的春天。
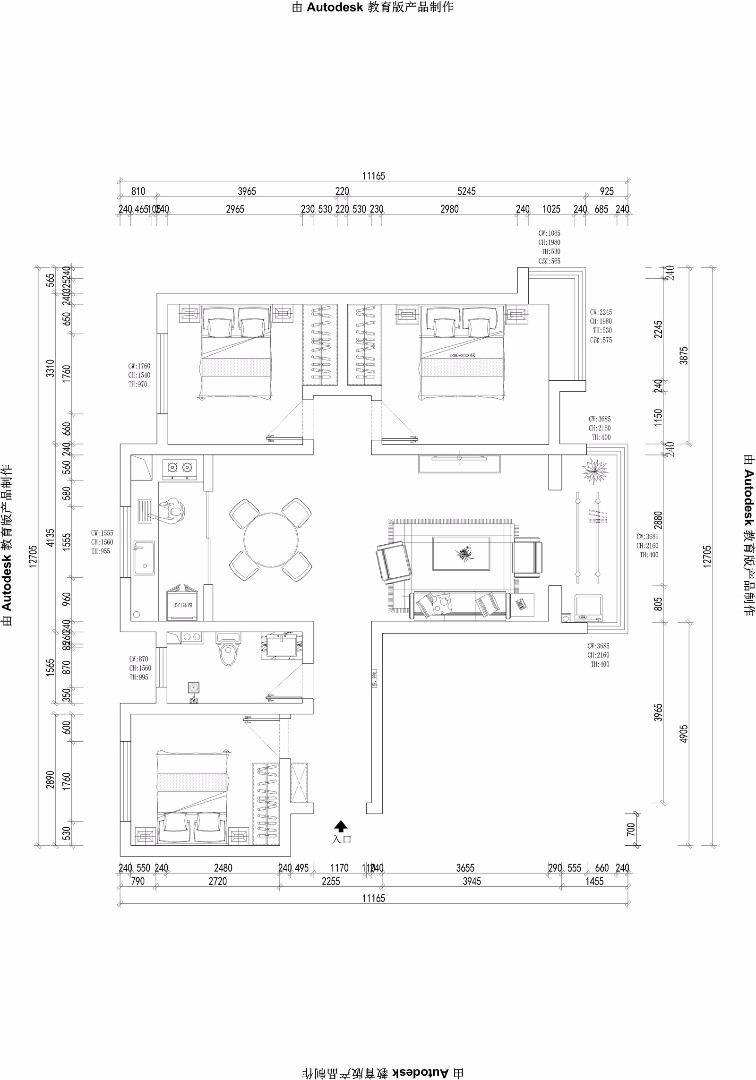
户型图

客厅




卧室

餐厅

风格定义为美式休闲, 家不仅仅是温暖放松的港湾,更是许多灵感的迸发地,当步入这座公寓时,一定会被它清新充满活力的气息所感染,不论四季变迁,严寒或酷暑,这里却只属于令人陶醉的春天。






